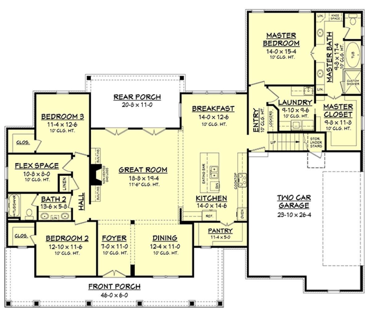
This charming country-style home captures relaxed everyday living with approximately 2,469 square feet of heated space. Featuring **three bedrooms**, **two full bathrooms**, and inviting front and rear covered porch spaces, this plan blends timeless exterior appeal with an intuitive interior layout.

Whether you’re drawn to classic design, outdoor connection, or easy flow between gathering areas, this country home feels comfortable and purposeful from the moment you step inside.

Exterior & Curb Appeal
The exterior of this home brings classic country charm with balanced proportions, a welcoming covered front porch, and a thoughtfully arranged façade.

Traditional elements like gabled rooflines and vertically oriented siding give it a timeless look, while well-scaled windows add visual rhythm and invite natural light inside. The footprint — roughly **74’-6″ wide by 60’-4″ deep** — sits comfortably on most property types and feels grounded without overwhelming the site.
Porches, Patios & Outdoor Living
Outdoor living is woven into the home’s design with both front and rear covered porch areas. The front porch offers a welcoming outdoor room for morning coffee or relaxing with a neighbor, while the rear porch creates a comfortable space for evening meals, lounge seating, or quiet moments enjoying your landscape.

These shaded zones help extend your living space outdoors and give this home a relaxed, open feel.
Interior Layout & Flow (Room-by-Room)
Stepping inside, the floor plan delivers clear circulation and connected living spaces. The great room, kitchen, and dining area flow together in an open arrangement that encourages natural day-to-day routines and provides excellent sightlines between key zones. Vaulted or tall ceilings in main gathering areas help create an airy, welcoming atmosphere. Bedrooms are positioned to offer privacy while remaining accessible to shared areas.
Kitchen, Dining & Gathering Spaces
The kitchen is thoughtfully placed as part of the home’s core gathering zone. Ample counter space, a central island for casual seating, and plenty of cabinetry help make meal prep easy and connected to the rest of the home. The nearby dining area feels naturally linked to both the kitchen and outdoor porch, allowing indoor-outdoor meals and experiences to flow easily.
Primary Suite (Owner’s Suite)
The primary suite offers a quiet retreat, situated for privacy and comfort. Its ensuite bathroom includes dual vanities and a well-planned layout that supports everyday routines. A walk-in closet provides generous storage and helps keep personal items organized and out of sight. Natural light contributes to a calming ambiance in this personal space.
Secondary Bedrooms & Bathrooms
Two additional bedrooms provide flexible space for family members, guests, or alternative functions such as a home office or creative nook. These secondary bedrooms share a full bathroom conveniently positioned in the layout, helping ensure smooth routines and accessible bathing areas without crowding.
Bonus Room / Flex Space / Office
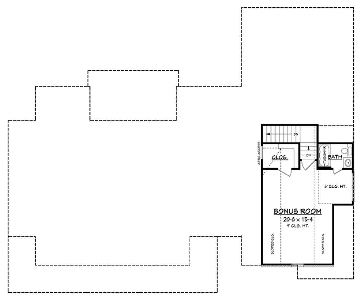
While this plan doesn’t include a designated bonus room above a garage or secondary level, interior spaces can adapt to a variety of needs — such as a study, play zone, or quiet reading nook — depending on how you furnish and personalize your rooms. This flexibility lets the home evolve with your lifestyle.
Storage, Mudroom & Laundry
Closets throughout the home support everyday storage, while a dedicated laundry room helps keep chores contained. A transitional zone near the rear porch entry provides a practical drop area for backpacks, shoes, and outdoor gear, helping keep shared spaces tidy and organized.
Garage & Practical Features
This home’s attached **two-car garage** provides secure parking and additional storage space for vehicles, tools, and seasonal gear. Convenient access from the garage into the home supports efficient daily routines. Main living areas enjoy **9–10 foot ceiling heights**, which enhance the open feel throughout this design.
Size & Key Specifications
- Total Heated Living Area: ~2,469 sq ft
- Bedrooms: 3
- Bathrooms: 2 full
- Stories: 1
- Garage: 2 cars attached
- Front Covered Porch: Included
- Rear Covered Porch: Included
- Overall Width: ~74’-6″
- Overall Depth: ~60’-4″
- Main Ceiling Height: ~9–10’
- Architectural Style: Country / Transitional
Lifestyle Benefits
This country home plan is designed for families who value connected common spaces and comfortable private retreats. Open living areas support everyday routines and easy entertaining, while outdoor porch zones expand functional living space for year-round enjoyment. Thoughtful storage options and practical transitions — like mudroom access near the porch — help daily life stay organized and calm. Whether hosting guests or enjoying quiet evenings, this home delivers a relaxed and functional lifestyle.
Estimated U.S. Build Cost (USD)
A reasonable estimated U.S. build cost for a home of this size and country style typically ranges from $650,000 to $900,000 USD, depending on region, exterior materials, interior finishes, roof complexity, and site conditions. This estimate focuses on building the home itself; land, permits, site work, utility connections, driveway, and landscaping are generally additional expenses. Choosing premium finishes or custom outdoor elements may push the total cost toward the higher end of the range.
“`0





















