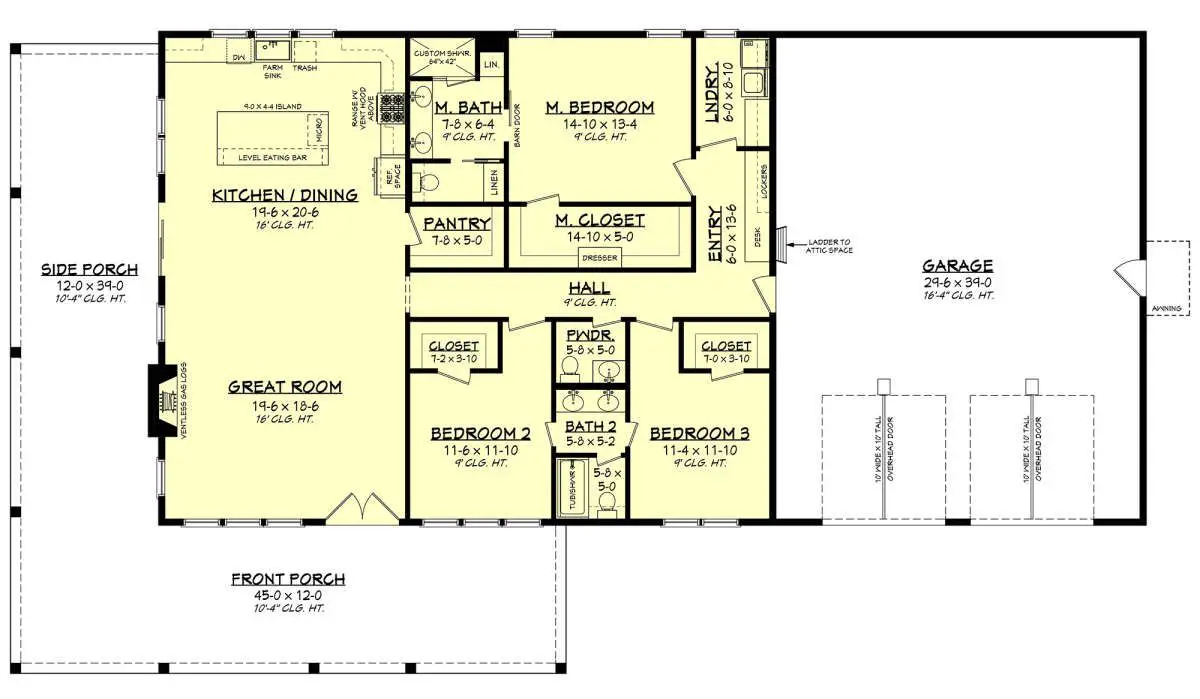
This striking barndominium combines rustic industrial charm with a family-friendly layout across approximately 2,000 square feet of heated living space. Featuring **three bedrooms**, **two full bathrooms and one half bath**, and expansive open living zones, this design delivers a relaxed yet purposeful lifestyle.

Clean lines, large windows, and an open interior make this home feel spacious and warm, while the barn-inspired exterior gives it character and everyday curb appeal.

Exterior & Curb Appeal
The exterior presents classic barndominium style with a tall, simple roofline and wide openings that emphasize proportion and presence. Metal or board-and-batten siding options lend a blend of durability and charm.

Large windows brighten interior spaces and help blur the line between indoors and out, creating a welcoming look from the street or driveway. At about **58’-0″ wide by 56’-0″ deep**, this home fits well on both rural tracts and smaller lots where space is relaxed yet efficient.

Porches, Patios & Outdoor Living
Outdoor living is part of the appeal here with a sizeable covered front porch that welcomes you in and expands your usable space. This porch provides a perfect spot for a swing, porch décor, or casual seating to enjoy morning coffee or evening breeze. Whether you’re greeting guests or simply enjoying quiet moments, these covered outdoor zones help extend your home’s functional footprint.

Interior Layout & Flow (Room-by-Room)
Inside, the plan focuses on open, connected living that supports dynamic everyday life. The great room, dining area, and kitchen flow seamlessly together, offering generous space for family gatherings, casual conversation, and everyday meals. Vaulted or tall ceilings enhance spaciousness and invite natural light to fill the interior. Sightlines throughout the main living areas help create a sense of openness that makes the home feel larger than its footprint.

Kitchen, Dining & Gathering Spaces
The kitchen sits at the heart of the home and is designed to be both functional and social.

A central island provides abundant prep space and informal seating, while ample cabinetry and countertops help keep everything organized. The nearby dining area connects naturally with both kitchen and living spaces, making it easy to hold family meals, casual brunches, or holiday gatherings.

Primary Suite (Owner’s Suite)
The primary suite is designed as a peaceful retreat at the end of the day. Its ensuite bathroom includes dual vanities and thoughtful layout that supports routine comfort and convenience. A roomy walk-in closet helps keep personal storage organized and out of sight, enhancing the restful ambiance of the suite.

Secondary Bedrooms & Bathrooms
Two additional bedrooms provide flexible space for family, guests, or dual-purpose use as a home office or hobby room. These bedrooms share a full bathroom that is conveniently positioned near the sleeping zones. With two full baths plus a half bath, this plan supports busy mornings and guest stays without compromising privacy or comfort.
Bonus Room / Flex Space / Office
This plan doesn’t include a formal separate bonus level, but the open, adaptable interior lets you define flexible spaces. A secondary living area, study nook, or hobby zone can easily be carved out within the main footprint, helping the home meet your lifestyle needs both now and in the future.

Storage, Mudroom & Laundry
Smart storage and practical everyday spaces are integrated into the design. Closets throughout help keep linens and essentials organized, while a dedicated laundry room supports day-to-day chores without interrupting living zones. A mudroom or drop zone near the porch entry adds convenience and helps keep outdoor gear contained before entering the main home.
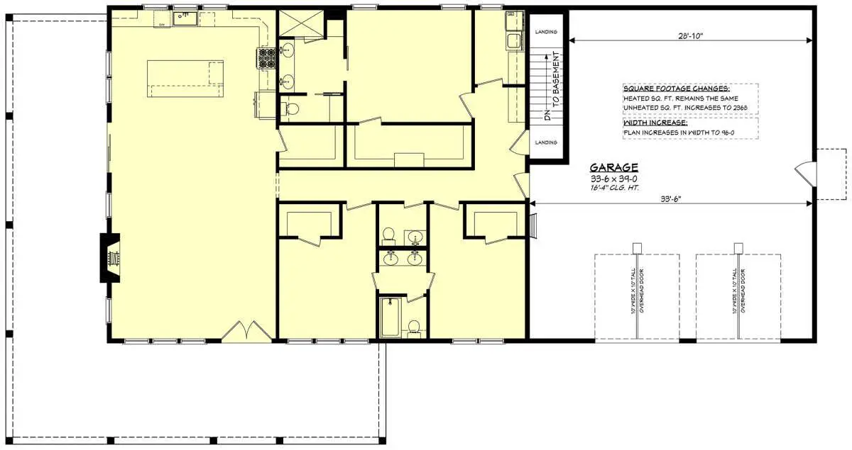
Garage & Practical Features
This barndominium doesn’t include an attached traditional garage but makes up for it with generous interior storage and adaptable floor areas that can accommodate parking or workshop needs in detached structures if desired. High ceilings, open circulation, and storage zones help make everyday living feel organized and efficient.

Size & Key Specifications
- Total Heated Living Area: ~2,000 sq ft
- Bedrooms: 3
- Bathrooms: 2 full, 1 half
- Stories: 1
- Front Covered Porch: Yes
- Overall Width: ~58’-0″
- Overall Depth: ~56’-0″
- Main Ceiling Heights: Vaulted or tall ceilings
- Architectural Style: Barndominium / Modern Farmhouse Hybrid
Lifestyle Benefits
This barndominium plan is ideal for those who love open spaces and flexible living. Its open main areas create a sense of expansiveness, while the porch and adaptable interior zones encourage framed views and indoor-outdoor connection. With multiple bedrooms and separate bathrooms, it supports both family life and guest stays comfortably. Smart storage placement and a practical laundry room help make daily routines smooth and tidy. And with strong architectural character that blends casual barn charm with modern farmhouse refinement, this design feels both inviting and purposeful.
Estimated U.S. Build Cost (USD)
A reasonable estimated U.S. build cost for a 2,000 sq ft barndominium-style home typically ranges from $380,000 to $580,000 USD, depending on region, exterior materials, roof complexity, interior finishes, and site conditions. This estimate focuses on the home’s core structure; land, permits, site work, utility connections, driveway, and landscaping are generally additional costs. Simple metal siding and efficient insulation can keep costs lower, while higher-end finishes or custom touches will push the total toward the upper end of the range.
“`0



















