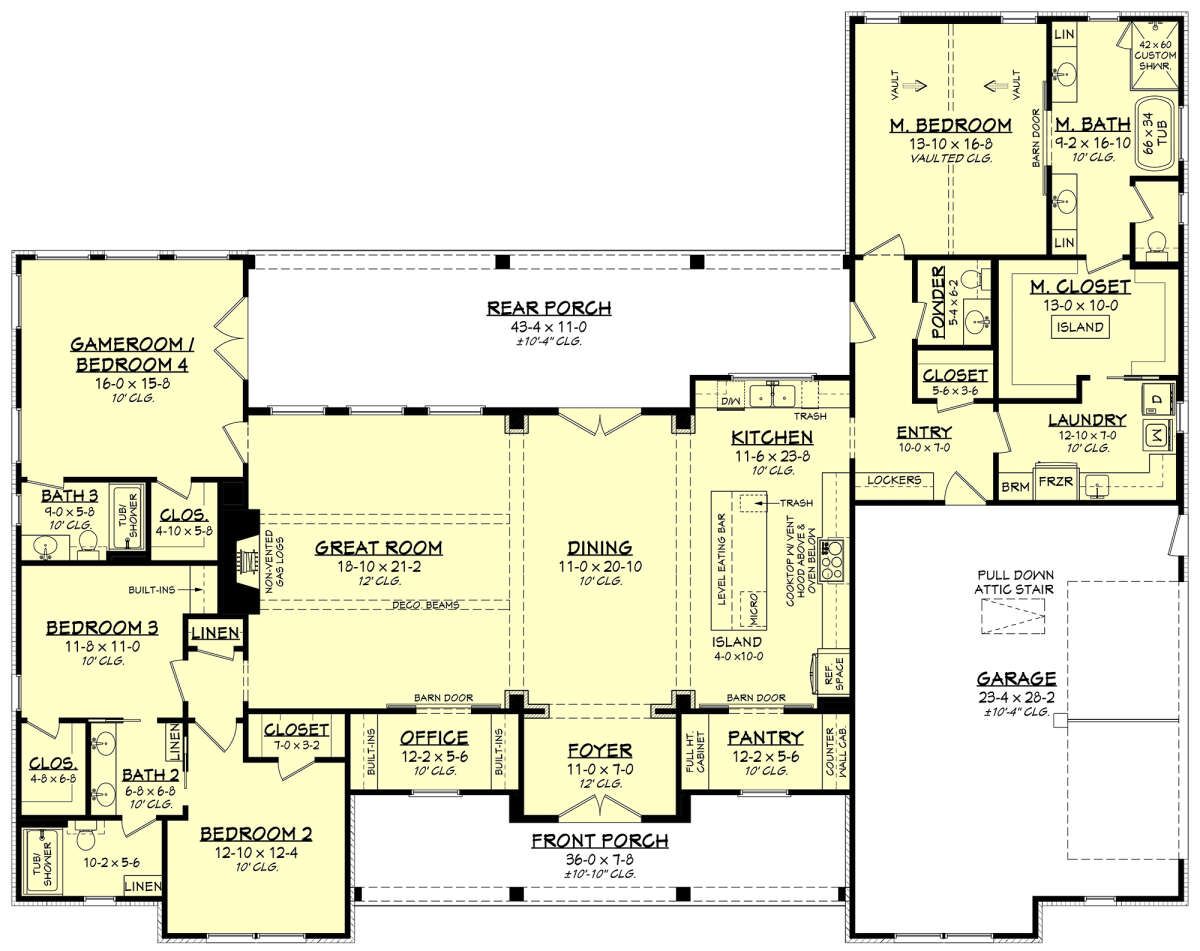
This welcoming modern farmhouse stretches across approximately 2,977 square feet of heated living space with a thoughtful blend of open family zones, private retreats, and generous outdoor living areas.

Designed with **four bedrooms**, **three full bathrooms and one half bath**, and a **two-car side-entry garage**, this plan brings classic farmhouse charm together with modern comfort.

Clean rooflines, board-and-batten accents, and an inviting porch create timeless curb appeal, while the well-planned interior supports everyday routines and relaxed entertaining. 0
Exterior & Curb Appeal
The exterior of this design captures modern farmhouse style with balanced proportions, substantial windows, and clean siding details that help light flood inside.

A wide, covered front porch makes the façade feel welcoming and practical, perfect for outdoor seating or seasonal décor. At roughly **84’ wide and 66’-4″ deep**, this home fits comfortably on a variety of lot sizes while presenting a refined yet approachable look.

Porches, Patios & Outdoor Living
Outdoor living plays a big role here, with both front and rear covered porch areas that expand your usable space. These zones are ideal for morning coffee, evening relaxation, or hosting backyard meals. Covered porches like these help connect your living spaces to the outdoors in all kinds of weather.

Interior Layout & Flow (Room-by-Room)
Step inside to an open layout that supports flexible everyday living. The main gathering spaces — including the great room, dining area, and kitchen — flow together seamlessly, creating a spacious feel while still defining distinct zones. Sightlines throughout the home make it easy to move from one area to another, and a thoughtful split bedroom arrangement keeps private spaces separate from the heart of the home. 3

Kitchen, Dining & Gathering Spaces
The kitchen offers plenty of counter space and includes a sizeable island that supports meal prep, casual seating, and socializing. Ample cabinetry and work surfaces help keep daily routines organized. Just off the kitchen, the dining area features easy access to the rear porch, allowing meals to easily transition between indoors and out — a big plus for everyday living and entertaining alike. 4
Primary Suite (Owner’s Suite)
The primary suite serves as a private retreat tucked away from the main traffic areas. Its ensuite bathroom offers dual vanities and a well-planned layout that makes morning routines simple. A spacious walk-in closet helps keep the bedroom zone organized and free from clutter, enhancing its calm and restorative feel. 5
Secondary Bedrooms & Bathrooms
Three additional bedrooms provide comfortable space for family members, guests, or dual-purpose use like a home office or hobby room. With three full bathrooms placed thoughtfully throughout the home and an additional half bath near common areas, this design helps keep busy mornings running smoothly and supports multiple users without congestion. 6
Bonus Room / Flex Space / Office
This plan doesn’t include a formal bonus room above the garage, but the open interior and flexible secondary rooms can easily be adapted as homework zones, a secondary living space, or a creative nook depending on your lifestyle. This makes the home adaptable as needs change over time. 7
Storage, Mudroom & Laundry
Closets are spread throughout the plan to help keep everyday essentials organized, and the dedicated laundry room is conveniently placed near the garage entry for easy access. A mudroom zone helps contain backpacks, shoes, and outerwear before they travel into the main living areas, helping maintain clean and functional spaces. 8
Garage & Practical Features
The attached **two-car side-entry garage** provides secure vehicle parking and extra storage space. Its placement keeps the front façade clean and balanced, and easy interior access supports smooth daily routines. Main living areas enjoy **10-foot ceilings**, which help enhance the feeling of openness in this home. 9
Size & Key Specifications
- Total Heated Living Area: ~2,977 sq ft
- Bedrooms: 4
- Bathrooms: 3 full, 1 half
- Stories: 1
- Garage: 2 cars (side entry, ~713 sq ft)
- Front Covered Porch: Yes
- Rear Covered Porch: Yes
- Width: ~84’-0″
- Depth: ~66’-4″
- Main Ceiling Height: ~10’
- Architectural Style: Modern Farmhouse / Transitional
Lifestyle Benefits
This modern farmhouse plan is crafted for families who value a mix of open living spaces and private retreats. Main social areas flow together for everyday routines and gatherings, while covered outdoor spaces extend your living zones into the fresh air. Generous bedroom zones and multiple full baths help keep daily life comfortable, and thoughtful storage and laundry placement streamline everyday tasks. Flexible spaces allow the plan to adapt as your lifestyle evolves. 10
Estimated U.S. Build Cost (USD)
A reasonable estimated U.S. build cost for a home of this size typically ranges from $780,000 to $1,100,000 USD, depending on region, material selections, roof complexity, and interior finishes. This estimate focuses on the home’s core construction; land, permits, site work, utility hookups, driveway, and landscaping are generally additional expenses. Custom upgrades — like premium cabinetry or high-end appliances — can increase the total cost toward the higher end of the range.
“`11





















