This charming rustic Craftsman plan blends traditional character with modern functionality across approximately 2,195 square feet of heated living space.

With three bedrooms, two full bathrooms and one half bath, plus a welcoming wrap-around porch and thoughtful interior layout, it’s designed for comfortable everyday living and relaxed entertaining.

Warm exterior materials and carefully planned interior zones make this home feel both cozy
Exterior & Curb Appeal
The exterior of this home showcases classic Craftsman charm with a generous wrap-around porch that invites outdoor living and enhances curb appeal. Balanced rooflines, tapered columns, and a mix of natural materials combine to deliver a welcoming first impression. The façade is detailed yet approachable, offering visual interest without overwhelming the senses.

Porches, Patios & Outdoor Living
One of the standout features of this plan is the extensive wrap-around porch. Spanning multiple sides of the home, this outdoor space is perfect for rocking chairs, porch swings, and casual seating for seasons of enjoyment. Whether you’re hosting a morning coffee gathering or winding down after a long day, the porch adds functional outdoor living that truly expands your usable spaces.

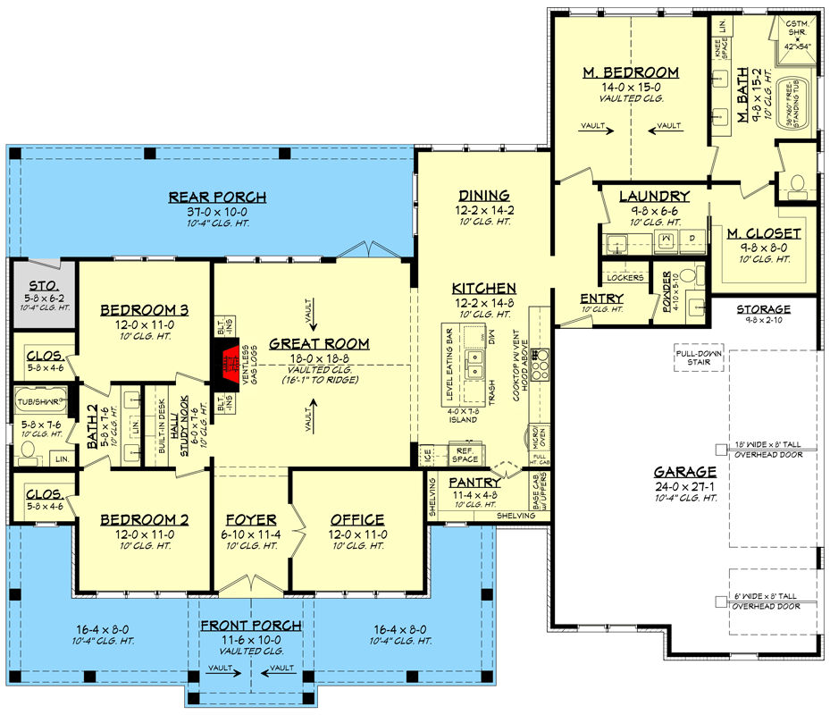
Interior Layout & Flow (Room-by-Room)
Step inside and experience a layout that encourages connection while maintaining defined spaces for different activities. The heart of the home is centered on an open living area that captures sightlines to the dining and kitchen zones, making it easy to interact with family and guests. Vaulted ceilings and abundant windows help flood the interior with natural light.

Kitchen, Dining & Gathering Spaces
The kitchen offers an efficient layout with plenty of counter space, cabinetry, and a central island that doubles as a casual dining spot or a gathering point during gatherings. Its proximity to the dining area keeps meals and entertainment connected while still feeling comfortably zoned for each activity.

Primary Suite (Owner’s Suite)
The primary suite provides a peaceful retreat with easy access to the common living spaces while offering enough separation for privacy. Its adjacent full bathroom and closet space ensure daily routines remain convenient and comfortable. Vaulted ceilings and thoughtful window placement create a relaxing atmosphere.

Secondary Bedrooms & Bathrooms
Two additional bedrooms offer flexible space for family members, guests, or dual-purpose uses like a home office or hobby room. A full bathroom easily serves these rooms, and a conveniently placed half bath near the great room enhances guest accessibility and daily convenience.
Bonus Room / Flex Space / Office
While this plan doesn’t include a dedicated bonus room above the garage, its flexible interior layout allows one of the secondary rooms or adjacent spaces to function as a home office, study area, or creative space — perfect for a work-from-home setup or a quiet retreat.
Storage, Mudroom & Laundry
Practical elements are well integrated into the floor plan. A dedicated laundry room keeps tasks organized and out of sight, while closets throughout ensure ample storage for linens, seasonal items, and daily necessities. Transition spaces help contain clutter and maintain calm in main living zones.
Garage & Practical Features
The attached garage offers room for two vehicles plus additional storage. Its placement enhances functional daily access and complements the home’s overall footprint without overpowering the façade. Strategic orientation supports traffic flow while preserving the inviting exterior aesthetic.
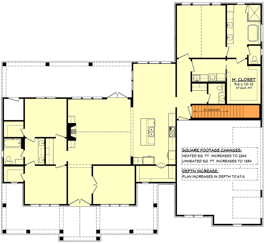
Size & Key Specifications
- Total Heated Living Area: ~2,195 sq ft
- Bedrooms: 3
- Bathrooms: 2 full, 1 half
- Stories: 1
- Garage: 2 cars attached
- Wrap-Around Porch: Covered, generous
- Great Room Ceiling: Vaulted
- Architectural Style: Rustic Craftsman
Lifestyle Benefits
This rustic Craftsman home plan is ideal for those who love connected living with a strong connection to the outdoors. The wrap-around porch expands your usable space and makes it easy to enjoy seasonal breezes, morning coffee, or relaxed gatherings. Inside, the open living areas support everyday routines and social interactions, while private bedroom zones and flexible spaces provide comfort and versatility. With thoughtful storage and a balanced layout, this home feels both warm and practical.
Estimated U.S. Build Cost (USD)
A reasonable estimated U.S. build cost for a home of this size typically ranges from $520,000 to $770,000 USD, depending on regional labor rates, material choices, interior finishes, and site conditions. This estimate covers the core construction; land, permits, utility connections, site work, driveways, and landscaping are usually additional expenses. Custom features or premium exterior materials can increase the total cost toward the higher end of the range.
“`0





















