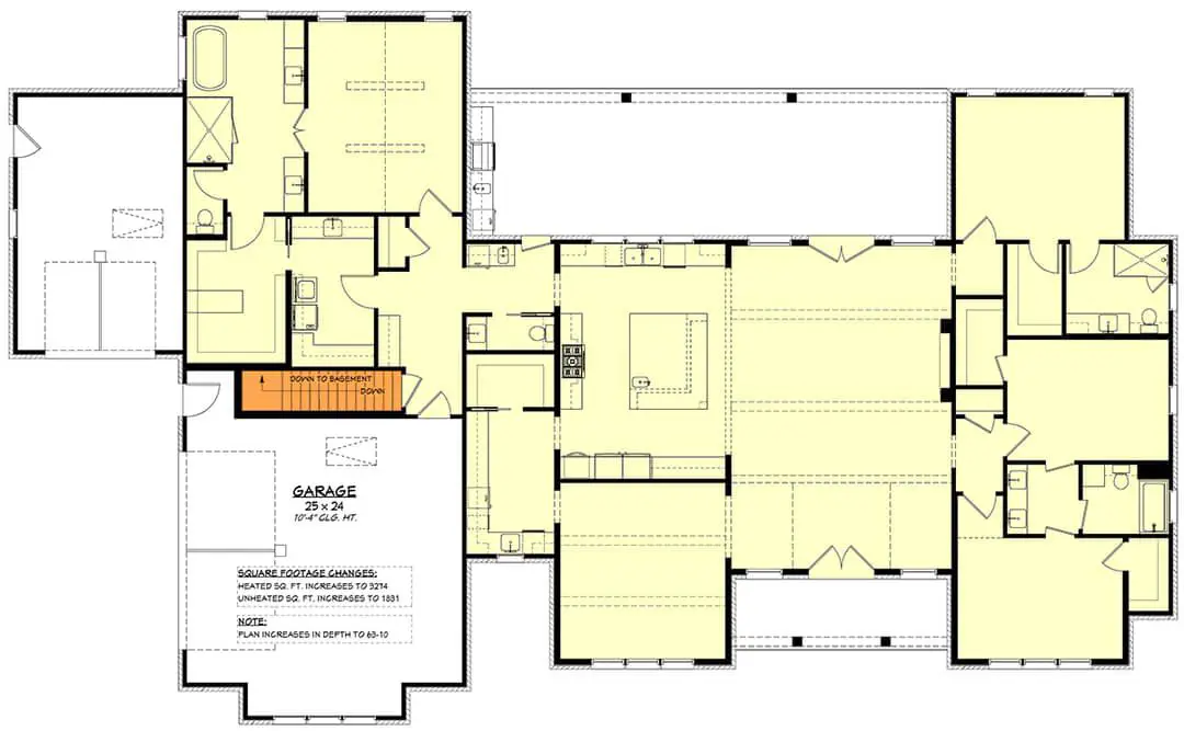
This grand modern farmhouse design offers approximately 3,250 square feet of heated living space with four bedrooms, 3.5 bathrooms, and a spacious three-car side-entry garage.
Blending timeless modern farmhouse charm with thoughtful transitional details, it’s built to accommodate family living, entertaining, and relaxed everyday routines.

The open-concept layout, generous outdoor living spaces — including a full outdoor kitchen — and smart bedroom placement ensure both comfort and style.

Exterior & Curb Appeal
From the street, this home presents a balanced mix of classic farmhouse lines and elegant transitional elements. Clean siding, gable roofs, and a welcoming covered front porch give it an inviting look that feels both timeless and elevated. The side-entry three-car garage (about 1,086 sq ft) keeps the front elevation free of dominant garage doors, enhancing curb appeal.

Porches, Patios & Outdoor Living
Outdoor living is a defining feature of this plan. A charming 130 sq ft front porch sets the tone for approachable, everyday comfort. The rear porch spans about 587 sq ft and features a full outdoor kitchen — perfect for al fresco meals, casual weekend gatherings, or summer celebrations. These covered outdoor zones expand your living space and make hosting effortless. 2

Interior Layout & Flow (Room-by-Room)
Step inside to a spacious foyer topped with 10-foot ceilings that enhance the sense of openness. The heart of the home flows easily from a gourmet kitchen — complete with a butler’s walk-in pantry — into a large great room. A dedicated formal dining room adjacent to the kitchen adds a touch of sophistication while keeping everyday meals central to family life. 3

Kitchen, Dining & Gathering Spaces
The kitchen is designed to be both functional and social, with generous counter space, a walk-in pantry, and an island that invites people to gather while you cook. The open connection to the great room ensures that interaction continues whether you’re preparing dinner or hosting friends. Formal dining space nearby enhances the home’s flexibility for entertaining. 4

Primary Suite (Owner’s Suite)
The primary suite is thoughtfully placed on the main level, creating a private sanctuary away from busier parts of the house. With direct access to the main-level laundry room, the layout supports effortless day-to-day living. The ensuite bathroom and large closet space give this suite a relaxed, retreat-like feel. 5

Secondary Bedrooms & Bathrooms
The remaining bedrooms are thoughtfully split from the primary suite to enhance privacy. Typically configured with a Jack and Jill bathroom between two bedrooms and another bedroom with its own access, this layout supports both family life and guest comfort. With three full bathrooms and one half bath, daily routines stay smooth even in busier households. 6

Bonus Room / Flex Space / Office
This plan includes versatile spaces such as a formal dining room and areas near the entry that can double as a home office, study, or creative zone. These flexible spaces offer adaptability for changing family needs — whether you need a quiet workspace or a dedicated play area. 7
Storage, Mudroom & Laundry
Practical design touches include a dedicated mudroom off the garage entry to catch everyday clutter, and a main-level laundry that supports busy routines without interrupting main living zones. Ample closets and storage spaces throughout the home help keep living areas neat and organized. 8
Garage & Practical Features
The attached 3-car side-entry garage (about 1,086 sq ft) offers plenty of room for vehicles, outdoor gear, and storage. Its placement supports easy daily access and maintains a polished exterior look. With 10-foot ceilings on the main floor and thoughtful transitions throughout, the home feels open and welcoming. 9
Size & Key Specifications
- Total Heated Living Area: 3,250 sq ft
- Bedrooms: 4
- Bathrooms: 3 full, 1 half
- Stories: 1
- Garage: 3 cars (side entry, ~1,086 sq ft)
- Front Porch: ~130 sq ft
- Rear Porch: ~587 sq ft with outdoor kitchen
- Overall Width: 105′ 0″
- Overall Depth: 61′ 10″
- Main Ceiling Height: 10′
- Architectural Style: Modern Farmhouse with Transitional and Traditional influences
- Special Features: Butler walk-in pantry, formal dining, split bedrooms, Jack and Jill bath, wet bar, mudroom, main-level laundry, outdoor kitchen
Lifestyle Benefits
This modern farmhouse plan was crafted for families and entertainers alike. Open gathering zones make everyday living connected and comfortable, while split bedroom placement enhances privacy and calm. Outdoor living spaces — particularly the rear porch with outdoor kitchen — extend usable square footage and create natural settings for gatherings, celebrations, or quiet evenings outdoors. Thoughtful details like a butler’s pantry, mudroom, and accessible laundry add convenience to daily life. 10
Estimated U.S. Build Cost (USD)
A reasonable estimated U.S. build cost for this modern farmhouse typically ranges from $780,000 to $1,120,000 USD, depending on region, materials, roof complexity, and interior finishes. This estimate covers the core home construction; land, permits, site work, utility hookups, driveway, and landscaping are generally additional costs. Customized features like premium cabinetry, advanced outdoor kitchen components, or bespoke finishes can push the final cost toward the higher end of the range. 11
“`12





















