This grand modern farmhouse delivers a perfect blend of spacious living, elegant architectural style, and versatile functional spaces.
With approximately 3,500 square feet of heated living area, five bedrooms, three full bathrooms and a half bath, and an attached 865 sq ft three-car garage, this plan is designed for large families, multigenerational living, or anyone who loves both everyday comfort and room to entertain.

Its welcoming exterior combines timeless white brick with warm timber accents, hinting at the comfort and sophistication inside

Exterior & Curb Appeal
The exterior of this home showcases classic modern farmhouse elements — clean lines, mixed materials like brick and wood details, and a balanced silhouette that feels both modern and timeless. A grand covered front porch invites relaxing mornings and neighborhood greetings, while the side-entry three-car garage maintains a tidy, elegant front elevation.

With a width of 99′-6″ and a depth of 68′-8″, the home sits comfortably on larger lots, making a strong curb appeal statement without overwhelming the streetscape.1
Porches, Patios & Outdoor Living
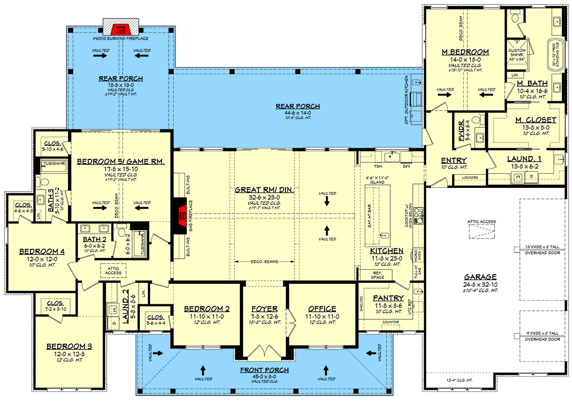
Outdoor living is a key feature of this farmhouse design. The expansive rear porch spans approximately 967 sq ft and includes a fully equipped outdoor kitchen — an entertainer’s dream.

Whether you’re hosting weekend barbecues, cooking dinners al fresco, or lounging by the fireplace under the stars, this space makes outdoor living feel effortless and luxurious. The front porch also adds a classic welcoming touch that enhances daily life.2
Interior Layout & Flow (Room-by-Room)
Step inside the grand foyer and you’ll immediately appreciate how the interior balances openness with thoughtful organization.

The expansive great room and dining area flow together in an open concept that’s ideal for daily living and special gatherings alike. Vaulted ceilings and exposed beams add architectural interest and volume, while large windows bring abundant natural light indoors.

A dedicated home office sits just off the entryway, perfect for remote work or quiet tasks.3
Kitchen, Dining & Gathering Spaces
The kitchen sits at the heart of the home with a large central island that supports food prep, casual dining, and conversation.

A convenient butler’s walk-in pantry keeps pantry goods and small appliances out of sight while providing ample storage. Adjoining the dining and great room spaces, the layout makes entertaining a breeze — you’re never far from the action whether you’re hosting formal dinners or weekday family meals

Primary Suite (Owner’s Suite)
The luxurious primary suite is privately situated on the main level, offering a serene retreat away from the home’s bustle. The spa-like master bath features dual vanities and a separate shower, while the spacious walk-in closet connects directly to the main-level laundry room — a convenience that simplifies daily routines. Thoughtful design ensures this suite feels like a true sanctuary

Secondary Bedrooms & Bathrooms
Four additional bedrooms are thoughtfully split across the home to maximize privacy and comfort. Two of the bedrooms share a Jack & Jill bath — perfect for kids or guest sharing — while another bedroom serves as a versatile game room with its own private bath, giving you flexibility for family use, guests, or hobby space. The arrangement helps maintain quiet retreats even with a full household.6

Bonus Room / Flex Space / Office
Beyond the main living areas, a versatile game/rec room offers space for recreation, movie nights, or creative pursuits. This zone can also adapt as an additional bedroom or hobby room as your needs evolve over time — giving your home long-term flexibility without complicating the main layout.7
Storage, Mudroom & Laundry
Daily life is supported with practical touches like a dedicated mudroom off the garage entry to corral everyday clutter and backpacks. Storage throughout the home helps keep living spaces neat and organized. A laundry conveniently accessible from the master closet enhances daily routines and reduces unnecessary trips through living areas.8
Garage & Practical Features
The attached three-car garage offers approximately 865 sq ft of space for vehicles, outdoor gear, and seasonal storage. Its side-entry orientation enhances curb appeal and provides flexibility in driveway design. With a 10′ first-floor ceiling height and optional 2×6 exterior wall framing, the home supports both comfort and durability.9
Size & Key Specifications
- Total Heated Living Area: 3,500 sq ft
- Bedrooms: 5
- Bathrooms: 3 full, 1 half
- Stories: 1
- Garage: Attached 3 cars (865 sq ft)
- Front Porch: ~372 sq ft
- Rear Porch: ~967 sq ft with outdoor kitchen
- Width: 99′-6″
- Depth: 68′-8″
- Main Ceiling Height: 10′
- Roof Pitch: 10 on 12 primary, 12 on 12 secondary
- Exterior Walls: 2×4 wood (optional 2×6)
- Architectural Style: Modern Farmhouse / New American / Transitional
Lifestyle Benefits
This grand modern farmhouse is designed for families who love gathering together and hosting with ease. The open living spaces make everyday interactions feel natural and connected, while split bedroom zones and private retreats help keep noise down and comfort high. The expansive rear porch with its outdoor kitchen and fireplace becomes an extension of your living space, perfect for summer dinners, holiday cookouts, or quiet evenings around the fire. Practical spaces like the office, mudroom, and accessible laundry add smooth convenience to daily life.10
Estimated U.S. Build Cost (USD)
A reasonable estimated U.S. build cost for a home of this size and design quality generally ranges from $900,000 to $1,350,000 USD, depending on region, roof complexity, finishes, site conditions, and foundation choice. This estimate focuses on constructing the home itself; land, permits, site work, driveways, utility hookups, and landscaping are usually additional expenses. Premium interior finishes, outdoor kitchen appliances, and bespoke exterior details will increase the final cost toward the upper end of the range.11
“`12





















