This spacious modern farmhouse provides about 2,715 square feet of heated living space with five bedrooms, three full bathrooms, and a generous attached four-car garage — all on one easy-living floor.

The layout blends open gathering spaces with private retreats through a split-bedroom arrangement, and includes a bonus room above the garage for flexible extra space.

This plan is ideal for growing families, multigenerational households, or anyone who wants room to entertain and live comfortably without losing that warm farmhouse vibe.0
Exterior & Curb Appeal
The exterior delivers classic modern farmhouse charm with crisp lines, balanced rooflines, and thoughtful details that give the home welcoming character.

A combination of board-and-batten siding with mixed textures provides visual interest, while the overall silhouette feels grounded and timeless. The side-entry four-car garage keeps the front façade clean and refined, contributing to strong curb appeal.1
The home’s footprint spans approximately 106′-4″ in width and 67′-8″ in depth, giving it a commanding presence while still fitting comfortably on roomy suburban or countryside lots.2

Porches, Patios & Outdoor Living
Outdoors plays a role in everyday living here. A front porch welcomes guests and offers a spot for morning coffee or casual evenings. The rear porch expands outdoor living, giving you flexible space for dining tables, lounge seating, or even an outdoor kitchen setup. These covered spaces help extend your living area into the fresh air — perfect for summer barbecues or quiet sunset moments.3

Interior Layout & Flow (Room-by-Room)
Inside, the home feels open yet purposeful. Entering the foyer, you’re drawn naturally toward the central living spaces where the floor plan flows effortlessly between kitchen, dining, and family room zones. The open arrangement supports everyday family interaction while allowing defined areas for different activities.4
The primary suite is placed on one side of the home for privacy, while secondary bedrooms are grouped on the opposite side, giving the split layout both comfort and separation. Circulation feels intuitive, and transitions between rooms are smooth and unobstructed — ideal for both everyday life and gatherings.5

Kitchen, Dining & Gathering Spaces
The kitchen sits at the heart of the home with a large island that invites guests to gather, set up buffet-style meals, or enjoy quick breakfasts. Ample counter and storage space make the kitchen functional for both everyday meal prep and holiday hosting. Its proximity to the dining area and great room ensures that conversation and connection are always part of the action.6
Windows around the gathering spaces bring natural light inside and help maintain a bright, open feel throughout the day. Sightlines from the kitchen to the outdoor spaces enhance the sense of connection and make entertaining feel seamless.7

Primary Suite (Owner’s Suite)
The primary suite is designed as a peaceful retreat with plenty of space for rest and relaxation. Its private bath includes dual vanities and thoughtful separation of shower and toilet zones, helping morning routines feel smooth. A roomy walk-in closet ensures abundant storage for wardrobe and accessories.8
Secondary Bedrooms & Bathrooms
Four additional bedrooms provide flexible spaces for family members, guests, or home offices. These rooms share thoughtfully placed bathrooms — one hall bath and one accessed directly from a bedroom — which reduces congestion and maintains privacy. The split-bedroom layout helps household members enjoy individuality without isolation.9
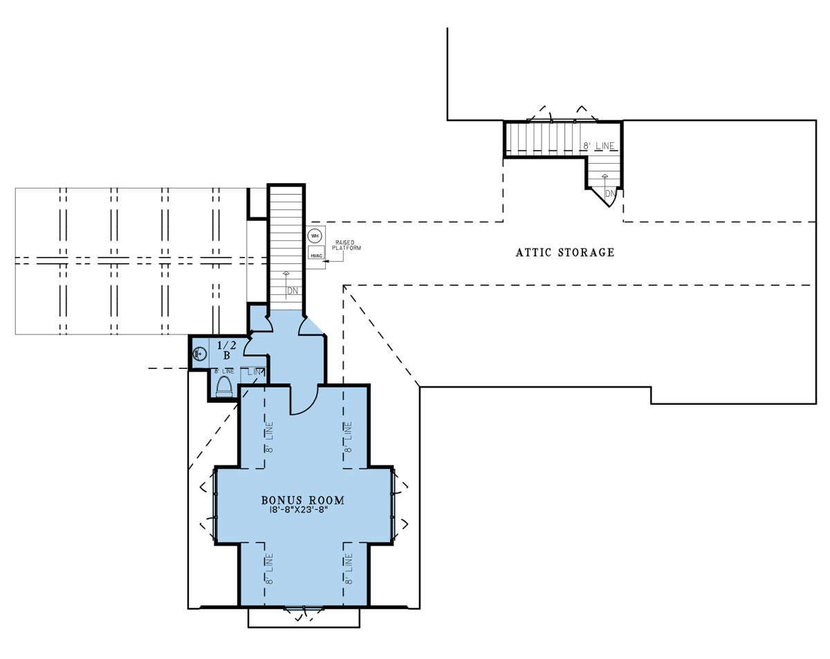
Bonus Room / Flex Space / Office
Above the garage, a 492 sq ft bonus room adds valuable flexible square footage. This space can become a media room, playroom, hobby zone, home gym, or workspace — whatever best fits your lifestyle. Its separation from the main living area gives it potential for noise buffering, creative use, or a quiet retreat.10
Storage, Mudroom & Laundry
The plan includes practical spaces such as a mudroom and laundry room positioned near the garage entry, which helps keep everyday clutter contained and ensures daily chores remain convenient. These transition areas serve as organizational hubs that support orderly living and reduce household stress.11
Garage & Practical Features
The attached four-car garage provides about 1,238 sq ft of space for vehicles, tools, seasonal storage, or hobby gear. Its side-entry placement enhances curb appeal and allows flexible driveway configurations. Tall ceilings allow for overhead storage if desired, making the garage both functional and accessible for daily use.12
Size & Key Specifications
- Total Heated Living Area: ~2,715 sq ft
- Bonus Room: ~492 sq ft
- Garage Area: ~1,238 sq ft
- Bedrooms: 5
- Bathrooms: 3 full
- Stories: 1
- Overall Width: 106′-4″
- Overall Depth: 67′-8″
- Main Ceiling Height: 9′
- Roof Pitch: 10:12
- Exterior Framing: 2×4 wood (option to 2×6)
Lifestyle Benefits
This modern farmhouse plan supports warm family living with space to entertain and retreat. Open main living areas encourage connection, while the split-bedroom layout allows personal space. Ample porch space extends everyday living outdoors and invites social gatherings or quiet unwinding alike. The bonus room adds flexibility that adapts as your lifestyle evolves — whether that’s a play haven, creative studio, or flexible zone that keeps pace with changing needs.13
Estimated U.S. Build Cost (USD)
A reasonable estimated U.S. build cost for a modern farmhouse of this size typically ranges from $575,000 to $865,000 USD, depending on region, finishes, site conditions, and construction choices. This estimate focuses on the home’s construction; land, permits, site work, utility hookups, driveways, and landscaping are typically additional costs. Choosing premium finishes, outdoor kitchens, or a fully equipped bonus space will move the final cost toward the higher end of the range.14
“`15





















