This beautiful European one-story ranch delivers spacious, open living with classic curb appeal and thoughtful functionality.
With 3,340 square feet of heated space, four bedrooms, four full bathrooms and one half bath, plus a large 4-car garage and bonus room, it’s tailored for families who want room to grow without sacrificing comfort or style.

The wide footprint and elegant exterior give the home a grounded, upscale presence that feels right at home on both roomy and estate-sized lots.0
The floor plan strikes a great balance between entertaining and everyday living. With split bedrooms for privacy, a central great room for family gatherings, and plenty of practical amenities like a walk-in pantry and office space, this design supports both relaxation and productivity.

Exterior & Curb Appeal
The exterior brings a timeless European aesthetic with balanced rooflines, a broad elevation, and brick or stone accents that create an upscale yet welcoming feel.

The home’s expansive width of approximately 120′-8″ gives it a dignified, estate-like presence from the street while maintaining classic charm.2

A side-entry garage minimizes visual impact on the front façade, allowing architectural details to shine and giving the entryway a more inviting and less utilitarian appearance.3

Porches, Patios & Outdoor Living
Outdoor living spaces are thoughtfully integrated to enhance daily life without overwhelming the interior. Covered porches at the front and rear offer flexible zones for relaxation, morning coffee, or evening get-togethers. The rear porch transitions easily from the great room, encouraging seamless indoor-outdoor flow.4

These spaces can be outfitted with seating, dining options, or casual lounge areas, creating extensions of the home’s living zones and increasing the total usable square footage without adding enclosed walls.5
Interior Layout & Flow (Room-by-Room)
Step through the entry and you’ll immediately feel how well this home is laid out. A central foyer leads into a beautifully open great room with long sightlines to the rear porch. This layout makes daily living and entertaining feel natural and connected — guests can mingle in the living space while someone else works in the kitchen without feeling isolated.6

Split bedrooms create distinct zones, giving the owner’s suite its own retreat while the secondary bedrooms are grouped on the opposite side of the house for added privacy. Transitional spaces, like hallways and entries, are sized to feel open but not cavernous, bridging rooms and zones with intentional flow.7

Kitchen, Dining & Gathering Spaces
The kitchen is designed with both form and function in mind. An island anchors the space, offering additional prep surface and informal seating. Nearby, a walk-in pantry provides generous storage for groceries and small appliances, helping keep countertops clear.8

Open to the dining area and great room, this kitchen ensures that meal preparation never feels isolated from the main living areas. Adjoining the space is a flexible breakfast nook or casual dining zone — ideal for everyday meals or quick coffee breaks.9

Primary Suite (Owner’s Suite)
The primary suite is a private sanctuary tucked away on the main level, anchored by a spacious bedroom and a well-appointed ensuite bathroom. The ensuite typically includes dual vanities, a separate shower, a private water closet, and room to include a standalone tub if desired. Large windows help bring in natural light while maintaining privacy.10

Adjacent to the suite is generous walk-in closet space that provides ample room for clothing and accessories, helping keep bedrooms clutter-free and organized.11
Secondary Bedrooms & Bathrooms
Three additional bedrooms provide comfortable private spaces for family members, guests, or flexible use as hobby or workspace rooms. Each bedroom is designed with proximity to a full bathroom, reducing hallway traffic and creating a practical living rhythm.12

With four full bathrooms scattered thoughtfully through the home, mornings and evenings are easier for everyone — no bathroom bottlenecks and more convenience for guests.13
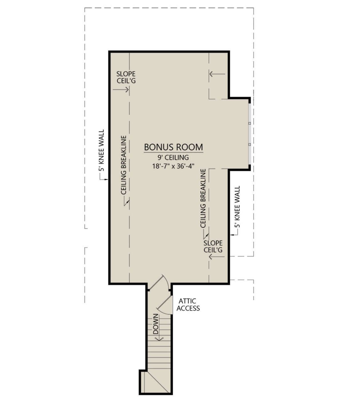
Bonus Room / Flex Space / Office
Above the main level — and connected in a way that feels intentional rather than an afterthought — is a large bonus room contributing approximately 774 sq ft of flexible space. This area can be a media room, home gym, creative studio, teen retreat, or multi-purpose zone that adapts to your lifestyle over time.14
Because it’s set apart from the principal gathering spaces, this bonus room offers some sound separation, making it suitable for activities that might otherwise disrupt the main living areas.15
Storage, Mudroom & Laundry
Strategic storage spaces throughout the home keep everyday life organized. A dedicated mudroom near the garage entry helps contain clutter from shoes, backpacks, and outdoor gear. It’s a simple feature that can dramatically reduce mess in the main living zones.16

The laundry room is located on the main floor, making chore days easier and more efficient — no hauling baskets between floors. Purposeful transitions ensure that storage and laundry areas feel accessible without interfering with living or entertaining spaces.17
Garage & Practical Features
The oversized 4-car garage provides a substantial 1,489 sq ft of space — enough for multiple vehicles, outdoor equipment, work benches, or seasonal storage. A rear-entry layout gives added flexibility depending on lot orientation and driveway design.18

Additional practical features include a workshop or storage zone within the garage, wide lanes for easy maneuvering, and ceiling heights that support oversized vehicles or upper storage.19
Size & Key Specifications
- Total Heated Living Area: 3,340 sq ft
- Bonus Room Area: 774 sq ft
- Bedrooms: 4
- Bathrooms: 4 full, 1 half
- Stories: 1
- Garage: 4-car (1,489 sq ft)
- Overall Width: 120′-8″
- Overall Depth: 94′-5″
- Main Ceiling Height: 10′
- Second Ceiling Height: 9′ (bonus)
- Main Roof Pitch: 10:12
- Exterior Wall Framing: 2×4 wood
Lifestyle Benefits
This home fits naturally into multiple lifestyles — from large family living and entertaining to hosting friends or multi-generational needs. The open common spaces connect beautifully while offering private retreats where needed. The oversized garage and bonus room expand home utility, and thoughtfully placed storage makes everyday routines easier.
Whether you’re hosting a weekend barbecue, working from home, managing homework zones, or simply unwinding on the rear porch, this design provides both practicality and a sense of occasion that feels refined yet livable.20
Estimated U.S. Build Cost (USD)
A reasonable estimated U.S. build cost for a European ranch home of this size and quality typically ranges from $900,000 to $1,340,000 USD, depending on your region, exterior finishes, level of interior upgrades, and local labor rates. Larger garages, finished bonus space, and outdoor features like covered porches or outdoor kitchens may increase total cost toward the upper end of the range.
This estimate focuses on constructing the home itself. Land, site work, permits, utility hookups, driveways, and landscaping are usually additional expenses and can vary significantly based on location and lot conditions.21
“`22





















