If you’ve been dreaming of a home that feels elegant on the outside and incredibly livable on the inside, this 3,190 sq ft European-style design brings that perfect balance.
It’s a one-story layout with four bedrooms and 4.5 bathrooms, which means everyone gets space, privacy, and fewer “who’s in the shower?” negotiations. Add a roomy 3-car garage and a bonus room for flexible living, and you’ve got a house that’s ready for real life—busy weekdays, relaxed weekends, and those surprise guests who somehow always arrive right at dinner time.

The best part is how the plan mixes classic European curb appeal with a smart, open interior. The kitchen stays connected to the main living spaces, there’s a cozy breakfast nook for everyday meals, and the split-bedroom arrangement helps the owner’s suite feel like a true retreat. It’s refined, comfortable, and built for a household that wants both connection and quiet.

Exterior & Curb Appeal
This home leans into a timeless European look with a strong roofline and a broad, grounded footprint that instantly feels substantial. The steep roof pitch gives it that storybook charm, while the overall width creates a grand, estate-like presence without needing multiple stories to do it.

Garage placement is also thoughtfully handled, offering both front-entry and side-entry appeal depending on how it’s positioned on your lot. That flexibility helps the home look polished from the street, while still delivering the everyday convenience of a large attached garage. In short: it’s the kind of exterior that makes you proud before you even unlock the front door.

Porches, Patios & Outdoor Living
While the specific outdoor square footage isn’t the headline here, the layout still supports comfortable indoor-outdoor living. With the main living spaces designed in an open flow, it’s easy to imagine doors leading to a covered patio or outdoor seating area, especially near the kitchen and great room zone.

This is a design that invites you to add outdoor furniture, string lights, and a grill that gets used more than once a summer. Whether you prefer quiet mornings outdoors or hosting weekend get-togethers, the home’s central gathering layout makes outdoor living feel like a natural extension of the interior.

Interior Layout & Flow (Room-by-Room)
One-story living is a big luxury—everything you need, right where you need it. The layout is arranged to keep the home feeling open and connected in the middle, with private bedrooms positioned more thoughtfully around the perimeter. That means the common areas feel lively and social, while the sleeping spaces stay calm and protected from noise.

The split-bedroom concept is especially valuable for families, multi-generational living, or anyone who wants a little separation between the owner’s suite and secondary bedrooms. You can be hosting a game night in the main living area while someone else is already winding down in a quieter wing of the home. Everybody wins.

Kitchen, Dining & Gathering Spaces
This home is built for togetherness, and it starts in the kitchen. A kitchen island anchors the space, giving you extra prep room, casual seating potential, and the perfect spot for people to hover and “help” while you cook. (Helping may include eating cheese. We’ll allow it.)
An open floor plan connects the kitchen to the main living spaces, so conversation flows easily from cooking to dining to lounging. The breakfast nook adds a warm everyday dining spot—ideal for quick meals, coffee breaks, and homework sessions that magically drift into snack time. The overall setup supports both casual family living and bigger gatherings without feeling like you’re hosting in a cramped maze.

Primary Suite (Owner’s Suite)
The owner’s suite being on the main floor is a comfort upgrade you’ll appreciate every single day. With the split-bedroom layout, the primary suite can feel tucked away like a private retreat, giving you that “hotel vibe” without actually checking out at 11 a.m.
And with 4.5 bathrooms in the home, it’s clear the plan prioritizes privacy and convenience. The owner’s bath can be designed with the kind of features people love—spacious layouts, separate zones, and storage that doesn’t require playing towel Tetris.

Secondary Bedrooms & Bathrooms
With four bedrooms total, the secondary rooms offer flexibility for family members, guests, or dedicated work-from-home space. The big win here is the bathroom count: four full baths plus one half bath. That means multiple bedrooms can enjoy easy access to private or semi-private baths, and guests can use the powder room without wandering into anyone’s personal space.
This setup is especially great for households with teenagers, frequent visitors, or anyone who enjoys a calm morning routine. No lines, no drama, no shouting down the hallway about toothpaste caps.

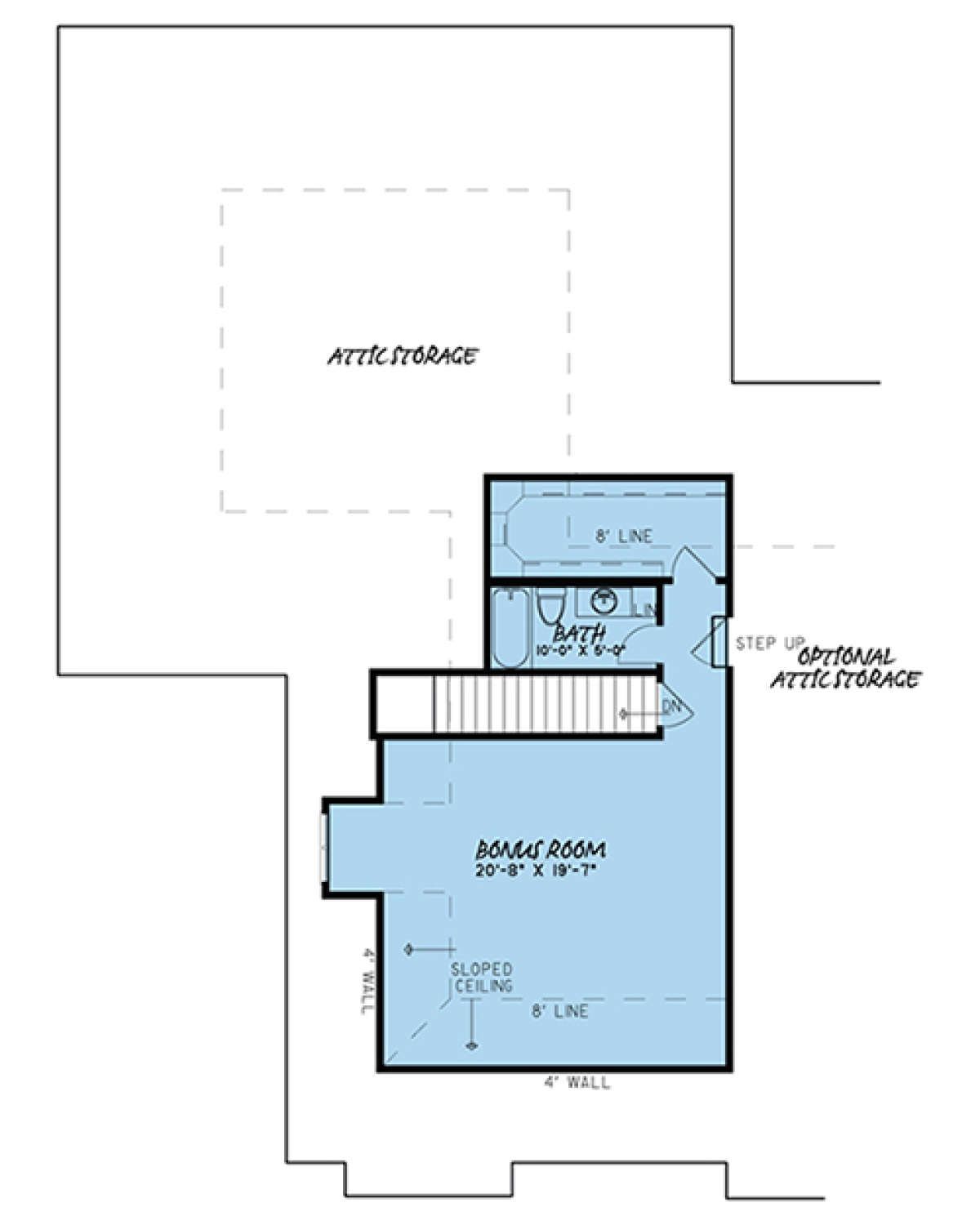
Bonus Room / Flex Space / Office / Loft
The bonus room adds 638 sq ft of flexible space, and that’s not “tiny corner flex space.” That’s a real room that can become whatever your life needs next: a media room, game room, home gym, hobby studio, or a quiet office that actually feels separate from the main living areas.
Bonus rooms are also a smart future-proofing feature. Your needs change over time—kids grow, jobs shift, hobbies appear out of nowhere—and having a dedicated flexible zone means the home can evolve with you instead of forcing you to move.
Storage, Mudroom & Laundry
A large home works best when it’s organized, and this layout supports that by pairing everyday living spaces with practical zones. With an attached garage, it’s easy to create a drop zone for shoes, bags, and everyday clutter—keeping the main living areas looking clean and calm.
Storage opportunities naturally increase in a plan of this size, and the overall flow makes it easier to keep things in their place. The goal is simple: less clutter in the gathering spaces, more room to breathe, and fewer moments where you’re looking for something that was “literally just here.”
Garage & Practical Features
The 3-car garage is a major lifestyle feature here, offering 1,199 sq ft of garage space. That’s enough room for vehicles plus storage, tools, bikes, seasonal décor, and the kind of “I’ll organize it later” boxes that we all pretend don’t exist.
Garage entry flexibility is another practical bonus. With front-entry and side-entry options in the design approach, it can work beautifully on different lot types while still keeping the home’s exterior looking refined.
Size & Key Specifications
- Total Heated Living Area: 3,190 sq ft
- First Floor: 3,190 sq ft
- Bonus Room Area: 638 sq ft
- Bedrooms: 4
- Bathrooms: 4 full, 1 half
- Stories: 1
- Garage: 3-car
- Garage Area: 1,199 sq ft
- Overall Dimensions: 90’6″ wide x 73’6″ deep
- Overall Height: 35′
- Main Roof Pitch: 12:12
- Exterior Framing: 2×4 wood
- Ceiling Heights: 9′ (main level), 8′ (bonus level)
- Plan Features: Owner’s suite on main, split bedrooms, open floor plan, breakfast nook, kitchen island, front/side entry garage
Lifestyle Benefits
This home is ideal for people who want one-story convenience without giving up space. The open living core makes daily life feel connected, while the split-bedroom layout protects privacy. With 4.5 bathrooms, hosting becomes easier and household routines become smoother.
The 3-car garage supports real storage needs, and the bonus room gives you a built-in “whatever comes next” space—perfect for changing seasons of life. Whether you’re raising a family, hosting extended relatives, or simply enjoying room to spread out, this layout is designed to feel both grand and comfortable.
Estimated U.S. Build Cost (USD)
A reasonable estimated U.S. build cost for a 3,190 sq ft European-style home like this often falls in the range of $765,000 to $1,145,000 USD. The final number depends heavily on region, exterior materials, roof complexity, and interior finish levels.
This estimate typically covers the construction of the home itself. Land, permits, utility hookups, site work, excavation, driveways, and landscaping are usually additional. If you opt for premium exterior finishes, higher-end cabinetry and tile, or fully finish the bonus room with upgraded details, budget toward the upper end of the range.





















