Elegant European Style Living in a 2,641 Sq Ft Single-Story Home
This lovely European style home blends classic architectural charm with thoughtful modern design. At approximately 2,641 square feet of heated living space, it offers a comfortable single-story layout with four bedrooms, two full bathrooms, and one half bath.

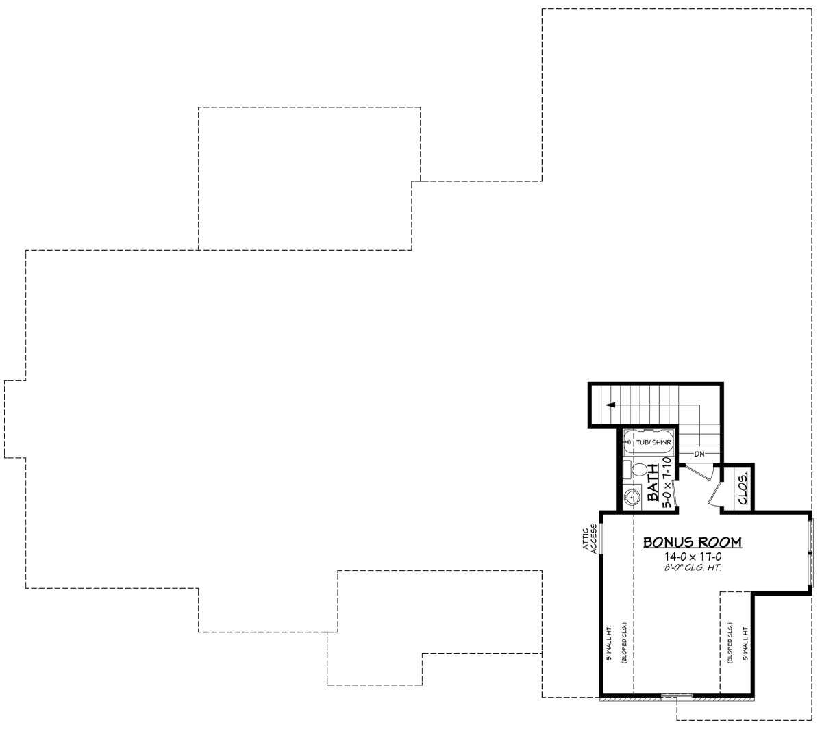
A bonus room adds even more flexibility to the plan, making this house ideal for growing families, guests, and everyday living.

Exterior & Curb Appeal
The exterior is beautifully composed with board and batten gables, double end brickwork, and a stone perimeter skirt that create rich visual texture. A covered front porch with warm wood beams and stone pillars welcomes you and gives the home a timeless, sophisticated presence. The double-door front entry feels grand yet inviting, giving guests a wonderful first impression.

This façade strikes the perfect balance between elegant European detailing and comfortable, livable style.
Front Porch & Outdoor Spaces
The covered front porch isn’t just a design feature — it’s an outdoor retreat. Whether you’re greeting neighbors or enjoying a quiet morning coffee, this space sets a calming tone before you even step inside.

At the back of the home, easy access to a rear covered porch invites outdoor living and relaxed gatherings, making it simple to extend entertaining space outdoors.
Interior Layout & Flow
Once inside, you’re greeted by a spacious foyer with soaring 11-foot ceiling heights that open directly into the heart of the home. The design connects rooms in a way that feels open and inviting while still maintaining distinct spaces for different activities.

Natural light flows through large windows, enhancing the sense of space and creating an airy, bright interior that still feels cozy and welcoming.
Great Room & Heart of the Home
The great room is expansive and warm with its 10-foot ceilings, stone fireplace, and built-in cabinetry. It functions as the central gathering point, perfect for family evenings, movie nights, or hosting friends. The proximity to the kitchen and dining room helps keep conversation flowing throughout daily life.
Sliding doors lead to the rear covered porch, seamlessly connecting indoor comfort with outdoor living.
Kitchen & Dining Area
The kitchen is thoughtfully designed with a generous central island featuring counter seating — perfect for breakfast, casual meals, or extra prep space. Plenty of cabinetry and counter room ensures efficient workspaces, while the nearby large walk-in pantry keeps all your staples neatly stored away.
The dining space enjoys abundant window views, bringing natural light into every meal and creating a delightful dining experience.
Primary Suite Retreat
The primary suite is situated for privacy and serenity. With generous floor space and tranquil views, it feels like a peaceful escape at the end of the day. The attached bathroom includes dual vanities, separate linen closets, a garden tub, and a separate shower — thoughtful features that make daily routines stress-free.
The oversized walk-in closet offers excellent storage and organization options to keep your wardrobe and accessories neatly arranged.
Secondary Bedrooms & Guest Comfort
Three additional bedrooms sit on the opposite side of the home, offering ideal separation for family members or guests. Each bedroom includes generous closet space and large windows for natural light.
These bedrooms share a well-appointed full bathroom with dual sinks and a tub/shower combination — perfect for everyday family life or visitors.
Bonus Room & Flexible Space
Above the main living area, a bonus room adds 355 square feet of versatile space. Whether you dream of a home theater, playroom, studio, or even a fifth bedroom with some adjustments, this extra area gives you room to grow.
The bonus room’s flexible design lets you tailor the space to your family’s needs without sacrificing the integrity of the main floor plan.
Utility & Practical Spaces
A dedicated utility room with a sink, counter space, and closet helps keep household chores organized and efficient. Between the garage and laundry area, a drop-off zone with built-in lockers is ideal for storing backpacks, outdoor gear, and everyday essentials.
These thoughtful features help maintain order and reduce clutter in daily living.
Garage & Storage
A two-car side loading garage offers generous space for vehicles and gear. An adjoining storage room provides additional room for tools, seasonal items, or hobby equipment, making storage feel effortless and accessible.
Home Dimensions & Specs
- Total Heated Area: 2,641 sq ft
- Bonus Room: 355 sq ft
- Bedrooms: 4
- Full Baths: 2
- Half Baths: 1
- Garage: 2-car side load
- Width: 76’ 4″
- Depth: 67’ 4″
- Ceiling Heights: 9’ first floor
Lifestyle Benefits
This European home is tailored for comfort, functionality, and everyday living. The open floor plan makes connecting with family easy, while separated sleeping spaces provide privacy and relaxation. The bonus room adds a layer of flexibility that enhances long-term livability.
Whether you’re hosting dinner, enjoying quiet evenings by the fireplace, or lounging outdoors, this design accommodates your lifestyle with elegance and ease.
Estimated U.S. Build Cost
Based on average U.S. construction costs for homes of this size and quality, the estimated build cost typically ranges from $475,000 to $580,000. Final cost will vary with location, selected finishes, site conditions, and labor rates.
Overall, this European styled home combines classic charm with thoughtful floor plan design, making it a beautiful option for families seeking both style and practicality.

“`0




















