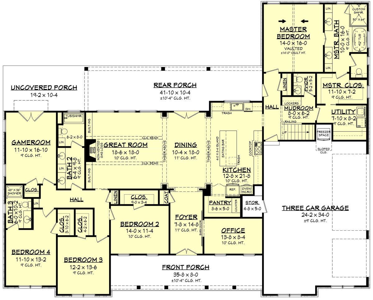
This modern farmhouse plan offers approximately 3,086 sq ft of beautifully arranged single-story living space that balances contemporary farmhouse charm with practical everyday design. The layout includes 4 bedrooms, 3 full bathrooms + 1 half bath, and an attached 3-car garage.

Its thoughtful open shared core, split bedroom zones, generous outdoor porch areas, and flexible bonus space make it ideal for families seeking a comfortable, stylish home that supports both daily life and casual entertaining.

Exterior & First Impressions
From the exterior, this modern farmhouse presents a well-balanced silhouette with board-and-batten siding, a welcoming covered front porch, and symmetrical rooflines that lend a timeless yet up-to-date look.

Large multi-panel windows and double porch spaces (front and rear) enhance natural light and encourage indoor-outdoor connection. The attached three-car garage not only provides ample parking and storage but also integrates seamlessly into the home’s overall aesthetic.

citeturn0search7
Open Shared Living Core & Everyday Flow
Stepping inside, you’re welcomed into an open shared living core where the great room, dining area, and kitchen flow together to create a cohesive and inviting space for everyday living and entertaining.

A dramatic vaulted ceiling in the central area enhances volume and light, while the great room’s beamed ceiling and large fireplace make this a cozy focal point. The centrally located dining area provides direct access to the rear porch — perfect for alfresco meals or gatherings that blur the line between indoor and outdoor living.

citeturn0search7
The kitchen serves as the heart of the home and features an oversized island with casual seating, generous counters, and abundant storage. A large walk-in pantry keeps essentials organised and supports an efficient kitchen workflow — ideal for everything from weekday meals to holiday dinners.

citeturn0search7
Primary Suite & Private Retreat
The **primary bedroom suite** offers a private retreat tucked into its own corner of the home. This spacious suite features a vaulted ceiling and a large en-suite bathroom complete with dual vanities and ample storage. A well-appointed walk-in closet connects directly to the laundry area, making everyday routines effortless and efficient.

citeturn0search7
Secondary Bedrooms & Flexibility
Three additional bedrooms are placed toward the opposite side of the home, creating a balanced split-bedroom layout that enhances privacy and comfort. Each bedroom includes walk-in closet space and convenient access to full bathrooms, making this plan especially family-friendly. Because of their flexible configuration, these rooms can also be adapted to serve as home offices, craft spaces, or guest suites if needed.

citeturn0search7
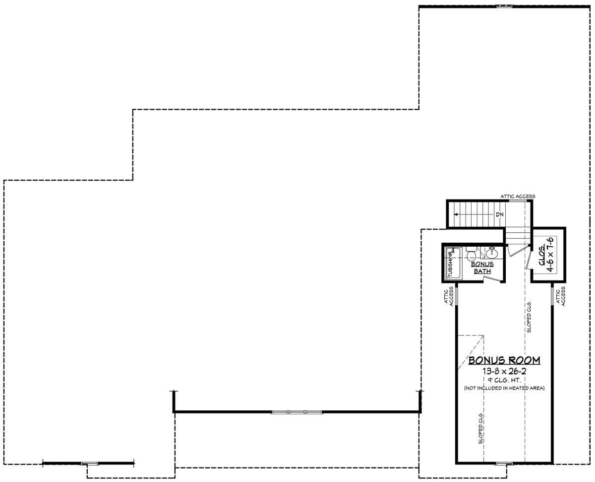
Bonus Room & Family Zones
In addition to the main shared core and private bedrooms, this home includes a versatile **bonus room**. This space can be tailored to your lifestyle needs — serving as a playroom, media room, hobby space, or additional guest area — adding valuable flexibility to the plan.

citeturn0search7
Indoor-Outdoor Living & Porch Areas
Outdoor living plays a meaningful role in this design. The **covered front porch** welcomes guests and expands everyday living space, while a **rear covered porch** extends the home’s footprint into the outdoors for dining, relaxing, or entertaining with family and friends. These porch areas reinforce seamless transitions between indoor comfort and fresh-air living.

citeturn0search7
Functional Features & Everyday Practicality
- Open-concept shared core unifying the great room, kitchen, and dining area for everyday flow and social engagement.
- Large kitchen island with casual seating and a walk-in pantry for practical meal prep and storage.
- Primary suite positioned for privacy with a vaulted ceiling, well-appointed en-suite bathroom, and direct laundry access.
- Secondary bedrooms located in a split layout to promote comfort and flexibility.
- Bonus room offering adaptable space for media, play, or guest use.
- Covered front and rear porch zones that enhance indoor-outdoor living.
- Attached three-car garage providing parking and storage support.
Quick Specs
| Feature | Detail |
|---|---|
| Total Heated Area | ~ 3,086 sq ft |
| Bedrooms | 4 |
| Bathrooms | 3 full + 1 half |
| Stories | Single story |
| Garage | 3-car attached |
| Porches | Front and rear covered porches |
| Bonus Room | Yes |
Estimated U.S. Build Cost
Typical U.S. residential construction costs in 2025 for a home of this size with modern farmhouse features range from about $175 to $350 per square foot, influenced by region, materials, labor availability, finish quality, and site conditions. Based on that range, building this ~3,086 sq ft home could cost approximately $540,000 to $1,080,000 USD before land purchase, site preparation, permits, utilities, and landscaping.
With **mid-range materials and standard finishes**, a practical expected build budget would likely fall around $680,000 to $820,000 USD. Choosing **higher-end finishes, custom cabinetry, premium fixtures, integrated outdoor kitchens or fireplaces, and enhanced landscaping** can push total build costs toward the upper end of that range.
Why This Plan Is Worth Considering
This modern farmhouse plan thoughtfully blends **open shared spaces, private bedroom retreats, flexible bonus zones, and generous porch areas** into a cohesive and inviting layout. Its balance of everyday comfort, purposeful flow, and meaningful indoor-outdoor connections makes it an excellent choice for families seeking a stylish and functional home that adapts to diverse lifestyle needs.
“`0






















