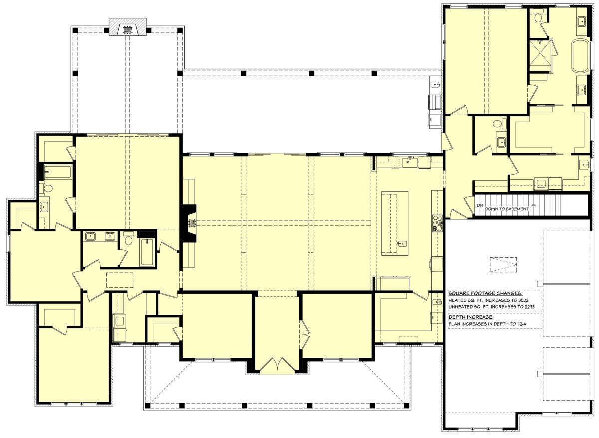
This modern farmhouse plan features approximately 3,500 sq ft of thoughtfully arranged living space designed around everyday comfort, open interaction, and practical flow. The home provides 5 bedrooms, 3 full bathrooms + 1 half bath, and an attached 3-car garage (~865 sq ft).

With a generous open concept core, distinct private retreats, and extensive porch areas that connect indoor and outdoor living, this design balances modern touches with classic farmhouse appeal.

Exterior & First Impressions
From the street, this home presents a welcoming farmhouse aesthetic featuring balanced rooflines, clean lines, and covered porch spaces that enhance its curb appeal and everyday livability.

The front porch invites relaxed seating and socializing, while large window openings punctuate the façade and help bring natural light deep into the shared zones. The attached three-car garage maintains a practical footprint that supports vehicles, storage, and everyday convenience.

Open Concept Core & Everyday Flow
Stepping inside, the heart of the home opens into a generous shared living area where the great room, dining area, and kitchen connect intuitively. This open plan supports natural interaction among family members and guests, making everyday tasks and larger gatherings both comfortable and connected. High ceilings and thoughtful placement of windows enhance the sense of space and light.

Anchoring this central zone is a large kitchen island that provides significant prep space, casual seating, and a natural gathering point during meal prep or relaxed conversations. Ample counter space, storage, and a walk-in pantry help keep the heart of the home functional and well-organized.

Primary Suite & Private Retreat
The **primary bedroom suite** is positioned for privacy away from busier shared areas. It includes an inviting en-suite bathroom with dual vanities, a separate tub and shower configuration, and generous closet space that enhances everyday organization. This suite offers a comfortable retreat, supporting restorative routines and quiet evenings at home.

Secondary Bedrooms & Flexibility
Secondary bedrooms are thoughtfully located to provide comfort and convenience for family members or guests. These rooms offer easy access to full bathrooms without interrupting the natural circulation of the home. The arrangement supports flexible use — whether as bedrooms, guest suites, or adaptable spaces for home offices or hobby zones that evolve with your lifestyle.

citeturn0search0
Indoor-Outdoor Living & Porch Areas
Outdoor living is an integral part of this design. The **covered front porch** creates a welcoming outdoor room for everyday relaxation, while the **rear porch/patio** expands the home’s usable space for alfresco dining, entertaining, or simply enjoying quiet moments outdoors. These exterior zones enhance year-round enjoyment and expand the connection between indoor comfort and outdoor living.
Functional Features & Everyday Practicality
- Open-concept shared spaces unify the great room, kitchen, and dining areas for fluid everyday interaction and entertaining.
- Large kitchen island with generous prep space and casual seating supports meal prep and social engagement.
- Primary suite designed as a private retreat with a well-appointed bathroom and ample closet space.
- Secondary bedrooms arranged to balance privacy and accessibility for family and guests.
- Generous covered front porch and rear porch/patio that expand daily living into the outdoors.
- Attached 3-car garage offering practical parking and storage capacity.
Quick Specs
| Feature | Detail |
|---|---|
| Total Heated Area | ~ 3,500 sq ft |
| Bedrooms | 5 |
| Bathrooms | 3 full + 1 half |
| Stories | Single story |
| Garage | 3-car attached (~ 865 sq ft) |
| Main Ceiling Heights | Open shared zones |
| Outdoor Living | Covered front porch + rear porch/patio |
Estimated U.S. Build Cost
Typical U.S. residential construction costs in 2025 for a home of this size and modern farmhouse character range from about $170 to $340 per square foot, depending on region, materials, labor availability, finish quality, and site conditions. Based on that range, building this ~3,500 sq ft home could cost approximately $595,000 to $1,190,000 USD before factoring in land purchase, site preparation, permits, utilities, and landscaping.
With **mid-range materials and standard finishes**, a practical expected build budget would likely fall around $720,000 to $890,000 USD. Choosing **higher-end finishes, custom cabinetry, premium fixtures, integrated outdoor kitchens or fireplaces, and enhanced landscape design** can push total build costs toward the upper end of that range.
Why This Plan Is Worth Considering
This modern farmhouse design thoughtfully blends **generous shared living space, private bedroom retreats, and inviting outdoor zones** — all wrapped in classic yet contemporary architectural detail. The practical flow, adaptable room arrangements, and seamless connection between indoors and out make it an excellent choice for families seeking both everyday comfort and memorable gatherings in a well-balanced home.
“`0





















