This modern farmhouse plan offers about 2,554 sq ft of practical and stylish one-story living space with an attached 2-3 car garage (~734 sq ft). The layout includes 4–5 bedrooms and 3 full bathrooms + 1 half bath, blending open shared areas with private retreats, flexible bonus space above the garage, and generous porch/patio zones for relaxed indoor-outdoor living.

Designed to fit a range of lifestyles, this plan brings classic modern farmhouse appeal together with everyday functionality and adaptability.

Exterior & First Impressions
The exterior of this home captures modern farmhouse character with balanced gables, crisp rooflines, and generous covered porch space that enhances curb appeal and outdoor living potential.

A wide covered front porch creates a welcoming entry, while the rear porch offers room for alfresco seating and relaxation. The overall footprint measures roughly 79′ wide × 59′ deep, making it suitable for a wide variety of lot sizes.

Open Concept Core & Everyday Flow
Stepping inside from the covered front porch, you’re greeted by an open-concept central living area where the great room, dining zone, and kitchen flow seamlessly together.

This layout promotes natural sightlines and easy circulation between shared spaces, making it ideal for both everyday family routines and larger gatherings. Tall ceilings in the main living zones enhance the sense of space and light throughout.

The kitchen anchors the heart of the home with a large island that supports meal preparation, casual dining, and social interaction. Adjacent counter space and storage help keep daily tasks efficient, while the easy connection to the dining and living areas strengthens communal living.

Primary Suite & Bedroom Zones
– The **primary bedroom suite** is positioned for privacy and comfort, offering sufficient space for daily use and relaxation.
– Additional bedrooms are thoughtfully arranged throughout the floor plan, providing flexible space for family members, guests, or adaptable uses like a home office or creative room. Depending on how you configure the bonus room above the garage, this home can function as a 4-bedroom or 5-bedroom layout to suit your household needs.

This balanced arrangement supports both private retreat and easy access to shared spaces.
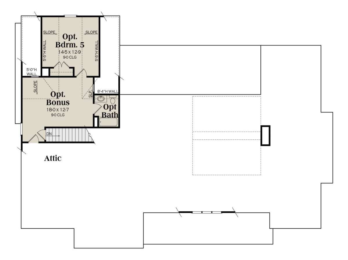
Bonus Room & Flexible Upstairs Space
Above the garage lies an **optional finished bonus room (~554 sq ft)** that adds valuable flexible square footage. This bonus area can be customized as a media room, play space, hobby room, home gym, or future guest suite — elevating the home’s adaptability for changing lifestyle needs. It provides ample room for growth without interrupting the primary living zones.

Outdoor Living & Porch Areas
Outdoor living is well-integrated into this design with generous porch and patio spaces that expand usable square footage and create natural extensions of the interior living zones.
- The **covered front porch (~259 sq ft)** offers a classic outdoor room ideal for morning coffee or greeting neighbors.
- The **rear porch (~447 sq ft)** connects directly to shared living areas and provides a perfect setting for alfresco dining, relaxed lounging, or social gatherings.
These outdoor zones enhance the home’s everyday livability and encourage seasonal use of exterior spaces.

Functional Features & Everyday Practicality
- Open-concept shared spaces that unify the great room, kitchen, and dining zone for connected everyday living and entertaining.
- Large kitchen island with prep space and room for casual seating.
- Flexible bedroom layout supporting 4–5 bedrooms depending on bonus room usage.
- Bonus room above the garage for media, recreation, or future needs.
- Generous covered porch areas that enhance indoor-outdoor living.
- Attached 2–3 car garage for versatile parking and storage options.
Quick Specs
| Feature | Detail |
|---|---|
| Total Heated Area | ~ 2,554 sq ft |
| Bonus Area | ~ 554 sq ft |
| Bedrooms | 4–5 (flexible) |
| Bathrooms | 3 full + 1 half |
| Stories | One level with bonus above garage |
| Garage | 2–3 car attached (~ 734 sq ft) |
| Front Covered Porch | ~ 259 sq ft |
| Rear Covered Porch | ~ 447 sq ft |
| Width × Depth | ~ 79′ × 59′ |
| Main Ceiling Height | 10 ft |
Estimated U.S. Build Cost
Typical U.S. residential construction costs in 2025 for a home of this size and character range from about $170 to $330 per square foot, influenced by region, materials, labor, finish quality, and site conditions. Based on that range, building this ~2,554 sq ft modern farmhouse could cost approximately $435,000 to $843,000 USD before land purchase, site preparation, permits, utilities, and landscaping.
With **mid-range materials and standard finishes**, a practical expected build budget would likely fall around $540,000 to $680,000 USD. Opting for **higher-end finishes, custom cabinetry, premium fixtures, integrated outdoor features, or advanced smart home systems** could push total build costs toward the upper end of that range.
Why This Plan Is a Great Choice
This modern farmhouse design thoughtfully combines **open, connected shared living spaces** with **private bedroom zones and flexible bonus areas** — making it ideal for families, frequent entertaining, and evolving lifestyle needs. Its generous covered porch zones create inviting outdoor living spaces that enhance the everyday indoor experience, while the adaptable bonus room adds future-ready versatility. Whether you’re hosting holiday gatherings or enjoying quiet family evenings, this plan provides comfort, flexibility, and enduring farmhouse charm.
“`0






















