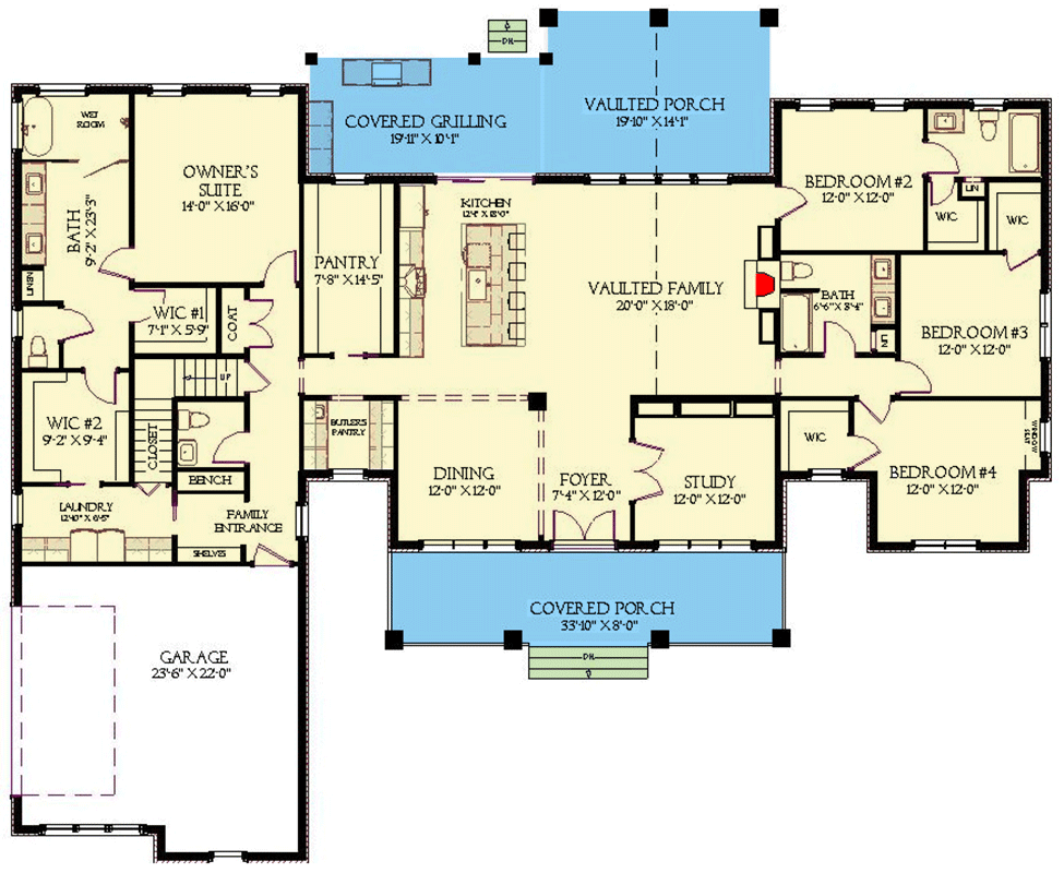
This modern-farmhouse design offers about 3,109 sq ft of conditioned living space on the main level, with a layout that includes 4 bedrooms, 3 full bathrooms + 1 half bath, and an attached 2-car garage (~581 sq ft).

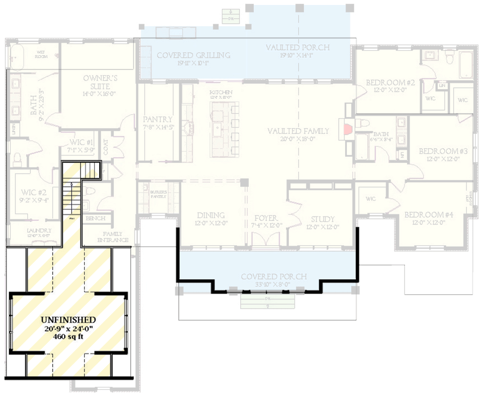
It also provides an optional bonus room (~460 sq ft) above the garage — offering flexibility for future growth.

Exterior & First Impressions
The exterior presents a clean, classic modern-farmhouse aesthetic: with a balanced façade about **88′-3″ wide × 53′-5″ deep**, gabled rooflines (9:12 pitch), and 10-ft first-floor ceilings that give the home a stately yet welcoming curb presence.
The attached side-entry garage helps keep the front view uncluttered, maintaining symmetry and curb appeal while offering practical parking and storage.

Open-Concept Core & Everyday Flow
Upon entering, the main living areas flow seamlessly: kitchen, dining, and great-room form an open‐concept heart — ideal for family life, entertaining, or relaxed daily living.
The kitchen includes a butler’s pantry / walk-in pantry and provides efficient workflow for cooking, storage, and meal prep.
High ceilings, open sightlines, and thoughtful layout create a bright, airy atmosphere that balances style and function — making the home feel more spacious than the square footage alone might indicate.

Bedroom Zones & Living Flexibility
– The four bedrooms give ample space for family members, guests, or future needs (home office, hobby room, guest suite, etc.).
– With 3 full bathrooms plus a half bath, the layout supports comfortable living for a household of 4–6 people or more — avoiding morning or guest bottlenecks.
– The optional bonus room adds roughly 460 sq ft of extra living/usable space — an attractive value-add if you envision needing extra storage, guest quarters, office, or media/rec space as your needs evolve.

Functional Features & Lifestyle Perks
- **Attached 2-car garage** — provides good parking and storage without compromising the home’s exterior aesthetic.
- **Bonus room above garage (optional)** — adds flexibility: office, guest room, media, storage or future expansion.
- **Butler/walk-in pantry + open kitchen-living-dining layout** — makes everyday living and entertaining easier and more efficient.
- **Good balance of size and manageability** — 3,109 sq ft gives generous living space without being too large to maintain. Plus, 10′ ceilings add spaciousness without excessive volume.
- **Flexible distribution of rooms** — ideal for families, guests, home office or future lifestyle changes.
Quick Specs
| Feature | Detail |
|---|---|
| Main Living Area | ~ 3,109 sq ft |
| Bonus Room (optional) | ~ 460 sq ft (above garage) |
| Bedrooms | 4 |
| Bathrooms | 3 full + 1 half |
| Stories | Single-level main layout + bonus above garage |
| Garage | Attached 2-car (~581 sq ft), side-entry |
| Footprint (W × D) | ~ 88′-3″ × 53′-5″ |
| Ceiling Height (Main Level) | 10 ft |
| Roof Ridge Height | ~ 32 ft |
Estimated U.S. Build Cost
Using typical U.S. residential construction cost ranges — roughly **$150 to $300 per sq ft** depending on region, materials, finishes, and site complexity — building a home of this size (3,109 sq ft) would likely cost between **$465,000 and $930,000 USD** (excluding land, site preparation, permits, and landscaping).
If you choose mid-range finishes and standard materials, a realistic expectation might be in the ballpark of **$575,000–$700,000 USD**. Finishing the optional bonus room — or adding features like outdoor kitchen, upgraded materials, or custom cabinetry — will push costs toward the upper end of that range.
Why This Modern Farmhouse Plan Could Be an Excellent Fit
This plan brings together a smart balance of space, flexibility, and practical living. With 4 bedrooms and multiple baths, it accommodates families comfortably — yet the optional bonus room gives room to grow as needs change (office, guest space, storage, etc.).
The open-concept living area, combined with a well-designed kitchen and pantry, makes daily living and entertaining easy and pleasant. The manageable footprint — neither too compact nor overly large — helps keep maintenance reasonable while giving generous living space.
The attached garage offers convenience without compromising curb appeal, and the overall proportions and ceiling height help the home feel spacious and welcoming.
If you want a home that feels modern and comfortable, with room to grow and adapt over time — while still being practical and efficient — this design offers a compelling blend of features and value.
“`13





















