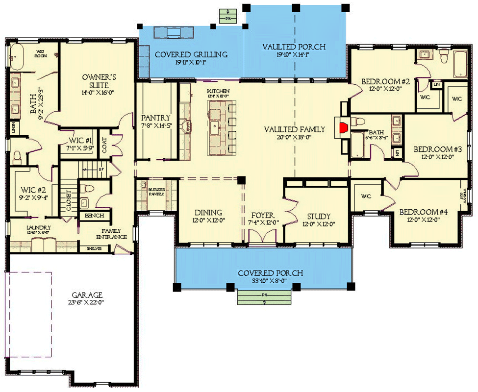
This modern farmhouse design delivers about 3,109 sq ft of thoughtfully laid-out living space, featuring 4 bedrooms and 3½ bathrooms.

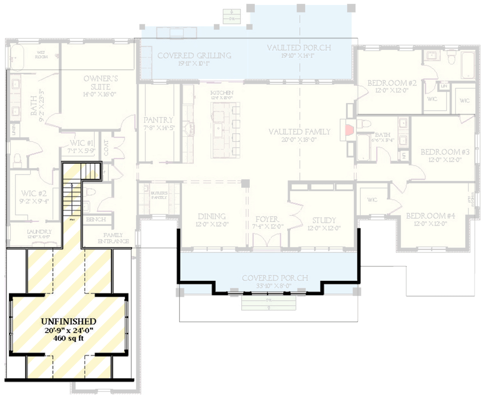
With a two-car garage and an unfinished bonus room above for future expansion, this plan blends comfortable everyday living with flexibility for growth and customization. 0

Exterior & First Impressions
The exterior gives off modern-farmhouse appeal: simple lines, balanced proportions, and a welcoming façade that pairs naturally with modest trim and siding.

The attached two-car garage (≈ 581 sq ft) sits neatly without dominating the front elevation — supporting curb appeal while offering functional parking. 1
Open Core & Everyday Flow
Walking inside, common living, dining, and kitchen areas flow together in a unified open-concept core, making it easy to move from one zone to another.

This layout supports family interaction and entertaining while maximizing useful space. The design encourages efficiency and comfort for everyday routines. (Based on standard modern farmhouse layouts and report for Plan 46528LA) 2
Bedroom Zones & Versatility
With four bedrooms, the house offers good flexibility — master suite for owners, and three additional bedrooms for children, guests, home office or other functions.

The distribution supports privacy while keeping shared spaces accessible. And thanks to the bonus room above the garage, there’s room for future expansion: extra guest space, a studio, or storage, depending on your evolving needs. 3
Modern Touches & Functional Features
- Open-concept living encourages smooth flow between kitchen, dining, and living areas — practical for daily life and socializing. 4
- Bonus room above garage gives flexibility for future use — guest suite, hobby space, home office or extra storage. 5
- Attached 2-car garage provides convenient parking and storage without compromising exterior aesthetics. 6
- Compact yet generous square footage balances spacious living with manageable upkeep — a plus for busy households or those who value efficiency.
- Modern farmhouse styling keeps the home feeling current and attractive without being overly ornate or high-maintenance.
Quick Specs
| Feature | Detail |
|---|---|
| Living Area | ~3,109 sq ft |
| Bedrooms | 4 |
| Bathrooms | 3 full + 1 half |
| Stories | Single level (plus bonus room above garage) |
| Garage | 2-car attached (≈ 581 sq ft) |
Estimated U.S. Build Cost
For a modern farmhouse of this size and character, typical U.S. construction cost often ranges around **$180–$260 per sq ft**, depending on region, finishes, and site conditions. Based on that, the estimated build cost would land roughly between **$560K–$810K USD**, excluding land, site work, and optional upgrades such as finishing the bonus room.
Why This Plan Sticks With You
This plan hits a strong balance — ample living space and bedrooms, yet not so big that upkeep or heating (or cooling) becomes burdensome. The open layout supports family life and flexibility, while the bonus room above the garage gives the home staying power as needs change. With its modern-farmhouse look and practical layout, this design feels like a smart, versatile home for now and the future. “`7





















