This modern farmhouse layout delivers roughly 3,369 sq ft of thoughtfully configured living space, featuring 4 bedrooms and a mix of bathrooms (including full & half baths) — an arrangement that offers flexibility and comfort for family living or guests.

With a side-entry garage, open-concept core, and bonus/utility spaces, this plan blends farmhouse style with modern livability and adaptability.

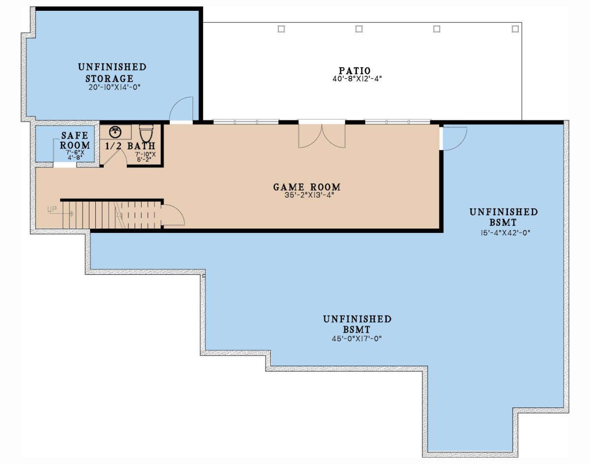
Basement

Exterior & First Impressions
From the street, the home shows clean modern-farmhouse styling: balanced proportions, a modest roof pitch, and a welcoming front porch that gently invites entry.

The side-entry 2-car garage stays discreet, helping preserve curb appeal while offering practical parking/storage. A rear porch or screened-porch (as suggested in the plan’s features) adds a cozy outdoor-living element — ideal for relaxing or enjoying fresh air. 1

Open Core & Everyday Flow
The main living area is organized around an open-concept core: kitchen, dining, and great-room spaces flow seamlessly, making daily routines, family interaction, and entertaining easy and natural.

A central kitchen island and breakfast nook contribute to efficient meal prep and casual gatherings. Direct connections to porch/patio space extend living outdoors when desired — a nice advantage for both everyday living and hosting. 2

Bedroom Zones & Versatility
With four bedrooms, the house offers flexibility: a private master suite plus secondary bedrooms for children, guests, or home-offices.

The bathroom/half-bath mix helps reduce peak-time congestion — especially useful for families or shared living scenarios. The plan’s division supports a balance between privacy and access to shared living spaces. 3
Modern Touches & Functional Features
- Open-plan design enhances light, flow, and communal living — ideal for families or frequent guests. 4
- Side-entry 2-car garage provides practical vehicle/storage space without compromising exterior aesthetics. 5
- Front and rear porch / porch-like areas extend living space outdoors — useful for relaxation or entertaining. 6
- Bonus/utility spaces (mudroom, screened porch, potential bonus area) add flexibility for storage, hobbies, or adaptation as needs change. 7
- Balanced size: large enough for comfort and multiple household members, yet efficient enough to avoid unnecessary maintenance burden. 8
Quick Specs
| Feature | Detail |
|---|---|
| Living Area | ~3,369 sq ft |
| Bedrooms | 4 |
| Bathrooms | 2 full + 2 half (configurable as 3 “bathroom zones”) |
| Stories | Single-level |
| Garage | 2-car, side entry |
Estimated U.S. Build Cost
For a modern farmhouse of this size and standard finish level, a typical U.S. build cost range would be approximately **$180–$260 per sq ft**, depending on region, materials, and site conditions. Based on that, the estimated total build cost would be around **$610K–$880K USD**, excluding land, site work, and optional upgrades.
Why This Plan Sticks With You
This design works because it balances flexibility, comfort, and style. The open layout and generous interior give room for daily family life, entertaining, or quiet downtime.
Four bedrooms and multiple bathroom zones offer adaptability — whether for a growing family, guests, or a home-office arrangement.
With the modern-farmhouse aesthetic, practical garage, and porch spaces, it feels both contemporary and timeless — a home ready to adapt as your life evolves.
“`9






















