This barndominium plan offers approximately 2,000 sq ft of efficient and flexible living space, with 3 bedrooms and 2½ bathrooms.
The design melds barn-inspired simplicity with modern residential comfort — a great choice for those desiring straightforward, open living with modest scale and utility.

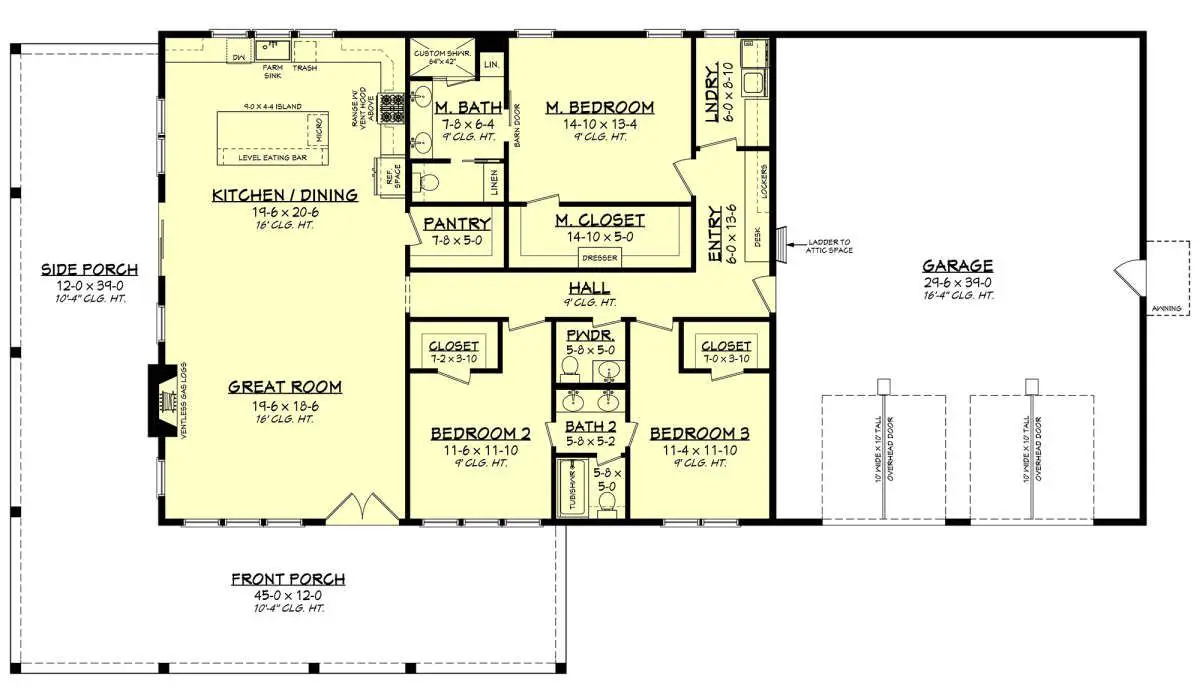
Exterior & First Impressions
The exterior embodies barn-house practicality and rustic character, with a broad footprint (≈ 92′ wide by 52′ deep) that suggests strong horizontal lines and a wide-span structure.

The attached 2-car garage integrates into the overall silhouette, giving a utilitarian yet clean presence. From curb (or field) it feels honest and unpretentious — built for use rather than show, yet still homey and grounded. 1

Open Core & Everyday Flow
Inside, the layout emphasizes openness and flow: common living areas (kitchen, dining, living) are designed to work in concert, maximizing usable space and making the home feel larger than its 2,000 sq ft footprint.

This open-concept core is typical of barndominiums and supports flexible furniture layouts, easy movement, and adaptable daily living and entertaining. 2

Bedroom Zones & Versatility
With three bedrooms, the house strikes a balance between modest size and functional flexibility. The bedrooms can accommodate a small family, guests, or even dual-purpose (bedroom + home office) usage.

The presence of 2½ bathrooms — including a half bath — helps reduce conflicts during busy mornings or guest stays, adding convenience without inflating footprint or cost. 3
Modern Touches & Functional Features
- Open floor plan helps maximize the sense of space and supports a flexible, adaptable lifestyle.
- 2-car garage offers practical parking or storage without dominating exterior appearance. 4
- Simplicity in form and structure — reflects the traditional barndominium ethos where function and durability matter over ornate detailing. 5
- Efficient size and layout make it easier to build, heat/cool, and maintain — especially appealing for modest lots or economical projects.
- Potential for customization: open-plan and barn-style geometry often allow flexible adaptation of spaces (storage, workshop, living, etc.). 6
Quick Specs
| Feature | Detail |
|---|---|
| Living Area | ~2,000 sq ft |
| Bedrooms | 3 |
| Bathrooms | 2 full + 1 half |
| Stories | Single level |
| Garage | 2-car attached |
Estimated U.S. Build Cost
For a barndominium of this size and typical finish level, a ballpark U.S. build cost often falls in the range of **$140–$200 per sq ft**, depending on materials, site conditions, and finish choices. Using that range, you might expect a total around **$280K–$400K USD** (excluding land, site work, and possible local adjustments). 7

Why This Plan Sticks With You
This plan works because it keeps things simple — yet functional. With 3 bedrooms and 2½ bathrooms, it offers enough flexibility and comfort for a small family, couple, or even a guest-friendly layout.

The barndominium structure gives durability and flexibility: open living spaces, straightforward construction and a utilitarian vibe that can also feel warm and homey. If you value practicality, adaptability, and modest living footprint without sacrificing function — this plan delivers.
“`8





















