This Craftsman-inspired home offers roughly 2,358 sq ft of smart single-level living, featuring 3 bedrooms and 2½ bathrooms arranged in a comfortable, family-friendly layout. With warm curb appeal, a side-entry garage, and a flexible bonus room, it blends classic charm with modern convenience.

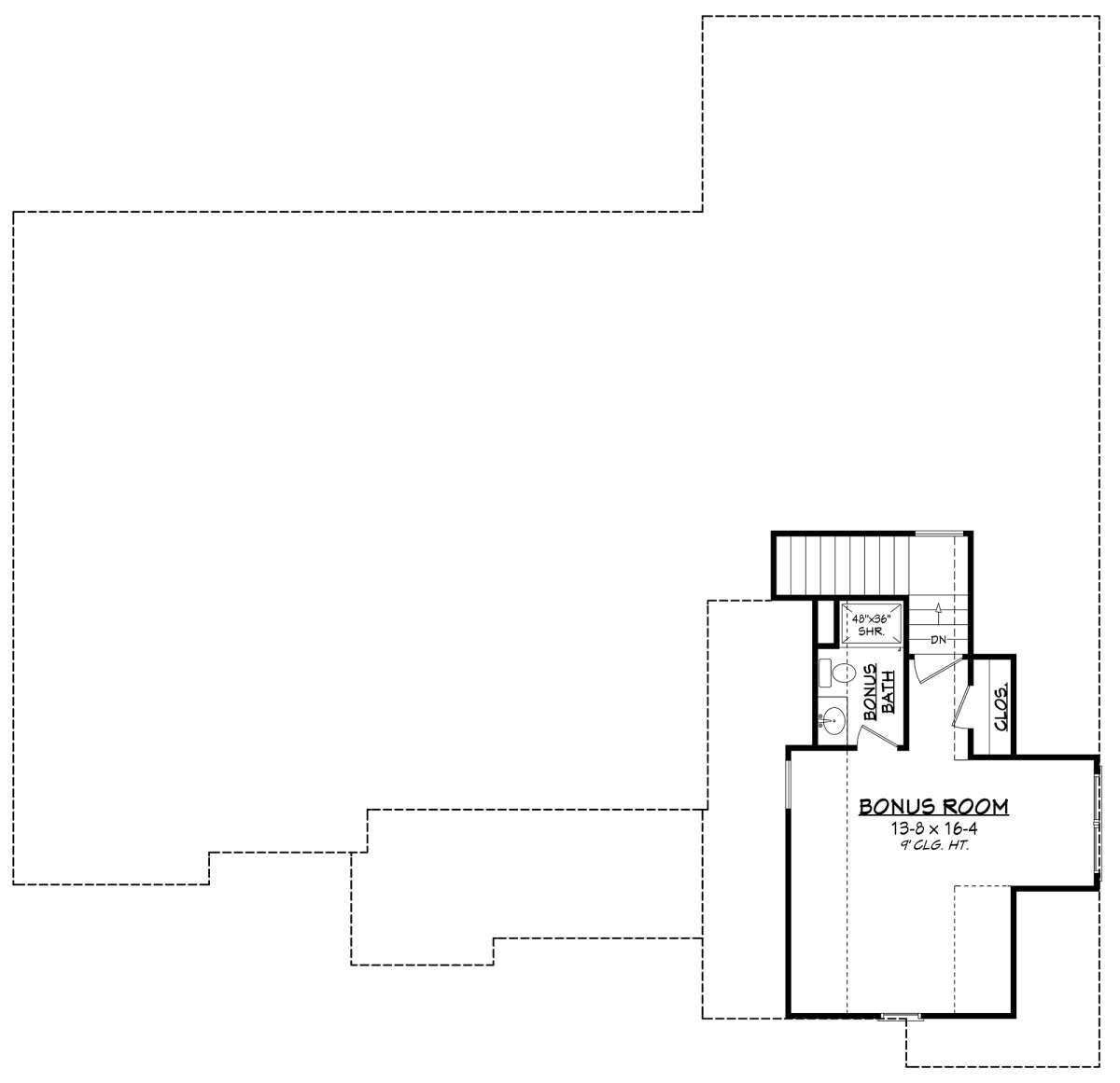
Bonus room

Exterior & First Impressions
The façade leans into timeless Craftsman character with a welcoming covered front porch, tapered details, and clean rooflines.

The side-entry garage keeps the front elevation polished and uncluttered, while the matching rear porch invites outdoor relaxation or weekend gatherings.
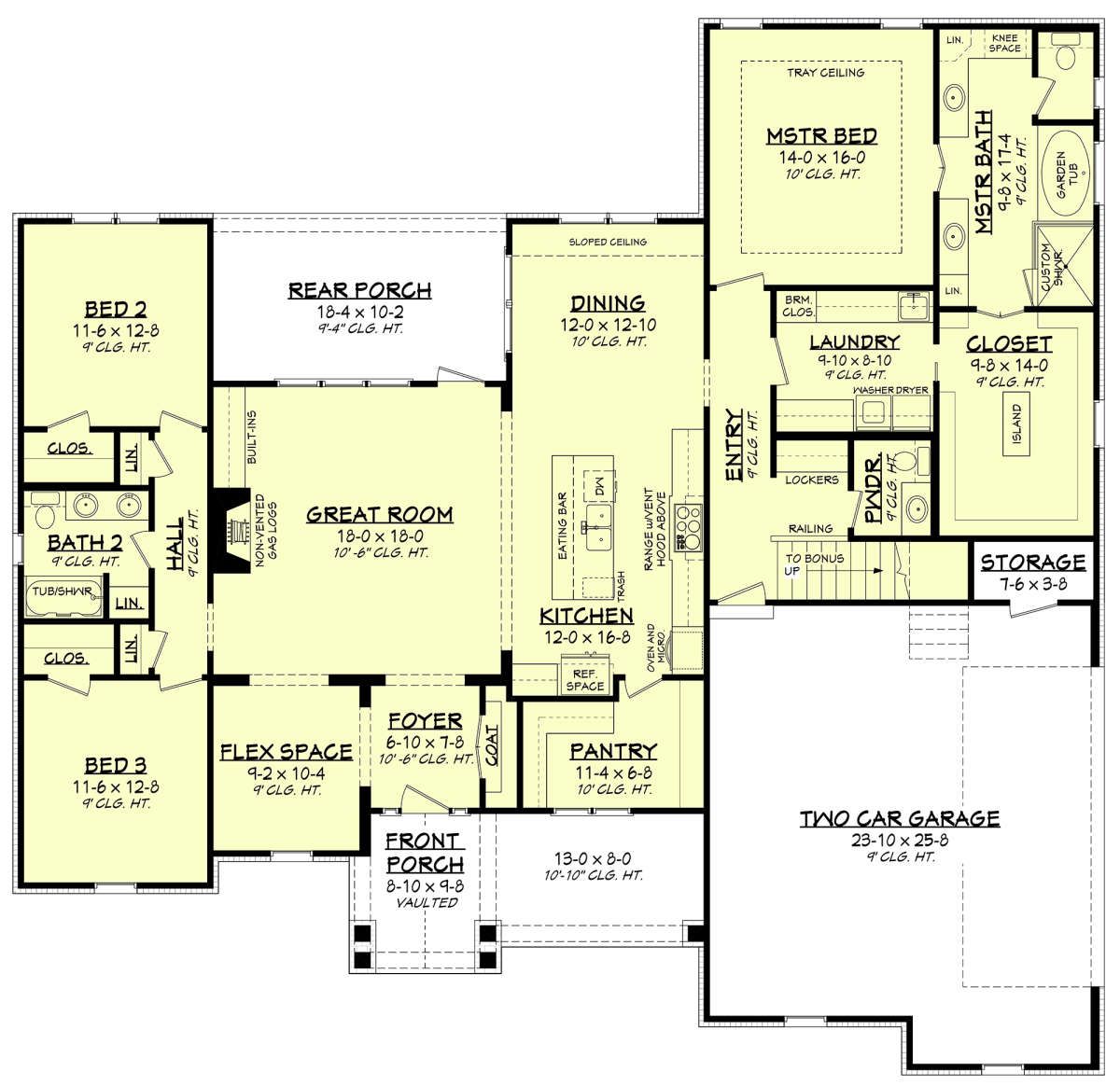
Open Core & Everyday Flow
Inside, the foyer leads into a bright, open great room where the living, dining, and kitchen spaces connect naturally.

A central island becomes the heart of daily routines, whether you’re prepping meals or catching up with family. Sloped ceilings and generous windows boost the sense of openness, while the nearby mudroom streamlines arrivals from the garage.

Bedroom Zones & Versatility
The layout uses a split-bedroom design to create privacy for the owner’s suite while positioning two secondary bedrooms on the opposite side. This separation works beautifully for families or hosting guests. A bonus room above the garage adds valuable flexible space — perfect as a guest room, office, playroom, or hobby zone.

Modern Touches & Functional Features
- Open floor plan encourages effortless flow between gathering spaces.
- Large kitchen island and abundant storage keep the workspace organized and efficient.
- Side-entry 2-car garage improves curb appeal and circulation.
- Bonus room provides future adaptability as needs evolve.
- Covered front and rear porches expand living space and add Craftsman charm.
Quick Specs
| Feature | Detail |
|---|---|
| Living Area | ~2,358 sq ft |
| Bedrooms | 3 |
| Bathrooms | 2 full + 1 half |
| Stories | Single level |
| Garage | 2-car, side entry |
Estimated U.S. Build Cost
A Craftsman home of this size and quality typically ranges from $160–$240 per sq ft in the U.S. Based on that, the estimated build cost would fall between $380K–$565K USD, excluding land, site preparation, and upgrades.
Why This Plan Sticks With You
What makes this design memorable is its balance — spacious enough to live comfortably without unnecessary sprawl. The open layout supports everyday ease, the bonus room expands your options, and the Craftsman styling keeps the home inviting and timeless. It feels warm, functional, and future-ready all at once.






















