If you’re looking for a beautiful modern farmhouse that blends timeless charm with contemporary comfort, this 2,158-square-foot plan delivers.
With flexible bedroom options, inviting living spaces, and clever layout design, it’s ideal for families seeking balance — peaceful privacy, open gathering areas, and everyday practicality.
Exterior Design
This home greets you with classic farmhouse curb appeal: clean lines, a welcoming front porch, and the option for a wrap-around porch that adds character and outdoor living space.
The roof pitches steeply, giving a crisp silhouette typical of modern farmhouse architecture. Large windows brighten the interior and offer pleasant views — perfect for a rural lot or quiet suburban street.
A front-entry garage is included, maintaining a tidy exterior while offering convenient vehicle access.
Interior Layout
Inside, the layout flows with ease and openness. The first floor spans the full 2,158 sq ft, creating a sense of space and continuity throughout the main living zones.
Ceilings are generous — 10 feet on the first floor — giving an airy, comfortable feel as you move between rooms. The open-floor concept integrates living, dining, and kitchen areas, making it easy to interact with family or guests while cooking or relaxing.
Bedrooms & Bathrooms
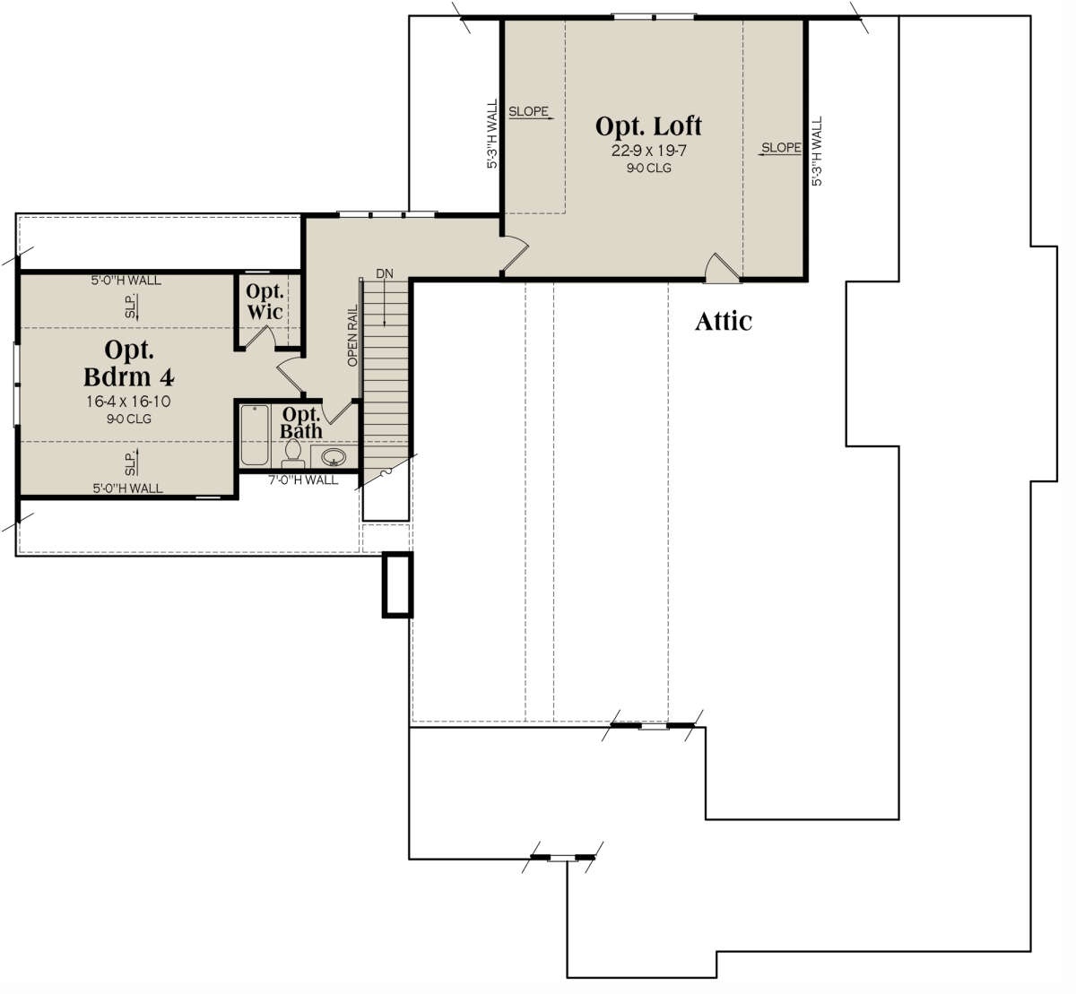
The plan offers flexibility with 3 to 4 bedrooms, depending on how you choose to configure the space. This makes it ideal for families of different sizes, guests, or future growth.
There are 2 full bathrooms and 1 half-bathroom — enough to serve a typical family without wasting square footage on unused rooms. Bedrooms are placed to ensure privacy while keeping the home layout efficient and natural.
Living & Dining Spaces
The living and dining areas are designed for comfort and togetherness. Because of the open-floor design, conversation and light flow easily from room to room.
This makes the space feel larger than its square footage suggests, and perfect for both everyday living and entertaining. Large windows help fill the rooms with natural light, creating a warm, inviting atmosphere where family and friends can gather.
Kitchen Features
The kitchen is a highlight — open, functional, and social. It includes a central island, which serves as a hub for cooking, dining, or casual conversation.
With an open-floor plan, the kitchen remains connected to living and dining spaces, so you won’t feel isolated while preparing meals. It’s an ideal spot for modern family life where meals, homework, and conversations happen in one space.
Outdoor Living (Porch & Patio)
One of the most charming features is the wrap-around porch — an homage to classic farmhouse style. This space offers room for rocking chairs, a porch swing, or simple outdoor gatherings.
Whether you sip morning coffee or entertain guests, the porch becomes an extension of your home’s living area. The design invites relaxation and connection with the outdoors, making it perfect for warm evenings or weekend get-togethers.
Garage & Storage
The house plan includes a front-entry garage, comfortably accommodating 2 to 3 cars depending on how you build. This provides secure parking and storage without sacrificing exterior aesthetics.
Inside the home, thoughtful layout and open space make storage options convenient, while the garage offers flexibility for daily use or storage of tools, gear, or seasonal items.
Bonus / Expansion Room
While the plan focuses on the essentials, its flexible design allows for future expansion. The “3-4 bedroom” option gives room to adapt: whether you need a home office, guest room, or additional bedroom, the plan can be configured accordingly. This adaptability makes the home suitable for changing family needs over time — a key advantage for long-term living.
Floor Plan:[Insert Floor Plan Image Here]
Estimated Building Cost
The estimated cost to build this home in the United States ranges between $260,000 – $320,000, depending on location, labor, and material choices.
Conclusion
This modern farmhouse plan offers the best of both worlds — cozy charm and modern convenience. With an open interior, flexible bedroom options, spacious kitchen, and inviting outdoor porch, it caters to everyday family life while leaving room for growth and personalization. Whether you’re looking for a welcoming family home or a peaceful countryside retreat, this design brings together comfort, style, and practicality in a timeless package.




















