The Craftsman Plan 8318-00453 brings together classic Craftsman styling and generous family-ready space.

With 3,049 sq ft of heated living area, five bedrooms, four full bathrooms, and a roomy 3-car side-entry garage, this design balances comfort, practicality, and timeless curb appeal.

Plan Overview & Key Specifications
| Living Area | 3,049 sq ft 3 |
|---|---|
| Bedrooms | 5 4 |
| Bathrooms | 4 full baths 5 |
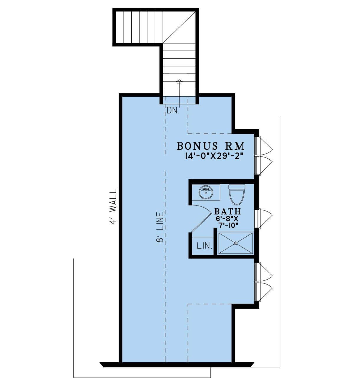
| Stories | Single-story main floor (with optional bonus room) 6 |
| Bonus Room | ≈ 416 sq ft (optional/bonus space) 7 |
| Garage | 3-car, side-entry (≈ 790 sq ft unheated) 8 |
| Porch/Patio Area | ≈ 383 sq ft combined porch & patio 9 |
| Width × Depth | 85′ 2″ × 69′ 8″ 10 |
Exterior & Curb Appeal — A Timeless Craftsman Look
The design embraces traditional Craftsman architecture: low-pitched gabled rooflines, broad horizontal proportions, and a welcoming covered porch entry.
These features align well with the defining traits of Craftsman style: natural materials, exposed structural details, and a homey yet elegant aesthetic.

The side-entry 3-car garage keeps the front elevation clean and home-focused, avoiding a big garage-door statement — a detail that helps preserve the architectural charm.
The included bonus room gives flexibility for future changes — guest space, office, hobby room or more — without altering the footprint.

Interior Layout – Spacious, Functional & Family-Friendly
Inside, the plan offers a well-balanced flow. The open layout typical of Craftsman homes allows living, dining, and kitchen zones to interact, which is ideal for everyday life and entertaining.

The five bedrooms and four baths give plenty of room for a larger family, guests, or a home office setup — and with multiple bathrooms, morning or guest-stay rushes are easier to manage.

The bonus room (≈ 416 sq ft) adds flexibility: use it as a media room, guest suite, playroom, or even a future master expansion — making this plan adaptable as needs change. 16
Why This Plan Works — Who It’s Ideal For
This house plan is a good fit if you:
- Want classic Craftsman curb appeal — cozy porch, grounded proportions, and timeless charm.
- Need space — 5 bedrooms and 4 bathrooms provide flexibility for families, guests, or work-from-home setups.
- Prefer single-story living (with optional bonus space) — easier access and long-term comfort.
- Value a 3-car garage without sacrificing aesthetics — side-entry garage preserves the front look.
- Like flexibility — bonus room and versatile layout adapt as your family or lifestyle changes.
Final Thoughts
Craftsman Plan 8318-00453 successfully combines cozy, classic design with generous living space and modern functionality.
It’s a thoughtful choice if you want a spacious home that feels welcoming, timeless, and ready for real daily life — whether you’re raising a family, hosting guests, or planning long-term comfort.
If you appreciate the charm of Craftsman style but don’t want to sacrifice space or practicality, this plan offers a very balanced option.






















