This elegant Craftsman-style home spans about **2,537 sq ft**, offering **4 bedrooms**, **3.5 bathrooms**, and a two-car garage.
The plan blends traditional charm with practical features, giving you room to grow and a layout that balances social spaces with private retreats.

Curb Appeal & Exterior Character
The design captures timeless Craftsman elements: a clean façade, a modest front porch, and a balanced roofline that reflects both elegance and function.

Open & Connected Living Spaces
- Great Room: Designed with a central fireplace, it’s warm and welcoming—a natural hub for family time. 2
- Kitchen & Pantry: The kitchen features an ample workspace with a convenient walk-in pantry to hide the mess or stow bulk groceries. 3
- Mudroom Access: A smooth path from garage → mudroom → kitchen keeps clutter and dirty shoes out of the main living zone. 4
Private Zones & Bedrooms
The master suite is given its own wing for privacy and features an ensuite bathroom. On the other side of the house, three additional bedrooms share two full baths — plus there’s a convenient half bath for guests.

Flexibility & Function
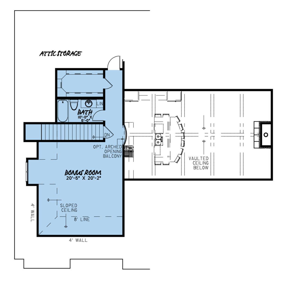
- Bonus Room or Loft: There’s extra space that could be used as a home office, playroom, or hobby area depending on your needs. 6
- High Ceilings: Many of the common areas feel grand and open thanks to high or vaulted ceiling designs. 7
Quick Specs
| Feature | Detail |
|---|---|
| Total Heated Area | ~2,537 sq ft 8 |
| Bedrooms | 4 9 |
| Bathrooms | 3 full + 1 half 10 |
| Garage | 2-car (side entry) 11 |
| Footprint Dimensions | 71′ 10″ wide × 61′ 3″ deep 12 |
Estimated U.S. Build Cost (USD)
Assuming a mid-to-high quality build, typical costs for this size and style range from **$180–$260 per sq ft**. That gives an approximate construction estimate of **$457K–$660K USD**, depending on finishes, labor region, and site factors (land & permits not included).
Why This Plan Works
This is a solid pick if you want elegance + practicality: classic Craftsman design, a smart flow between living and utility areas, flexible bedroom wings, and a bonus room to adapt to your life. It feels substantial without being overly massive—a great forever-home candidate.
“`13























