Imagine a home that welcomes you with a wide front porch, gives you plenty of space now (~4,100 sq ft of heated living area), **4 bedrooms**, **4½ baths**, and a **4-car garage**—and still leaves plenty of room to grow.
That’s exactly what this design delivers. With an optional finished lower level, this house blends today’s comfort with tomorrow’s flexibility.

First Impressions & Curb Appeal
You’ll pull up to a striking façade: broad gables, clean siding, a timber-accent porch, and yes—a 4-car garage (because one or two cars today might be four, six, or seven tomorrow).
The front porch vaults into the foyer, setting an elevated tone from the start. 2

Living Spaces That Feel Big, But Comfortable
The main living core is the kind of space that invites lounging, hosting, and living without feeling cavernous.
A great room with coffered (or vaulted) ceiling anchors the layout, connects openly to the dining area and kitchen, and opens via a large rear wall (collapsible or large windows) to the backyard patio. Indoor-outdoor living? Check. 3

The kitchen is built for both everyday and entertaining: large island, double-sink under a view window, walk-in pantry for bulk storage (yes, there’s space for your giant cereal stash).
From here you move seamlessly into the dining room, then to a hearth room with its own fireplace—so cozy you’ll use it even when the weather is fine. 4

Bedroom Layout & Privacy
The master suite is tucked to one side of the main floor for better separation and quiet.
It offers porch access (hello morning coffee and fresh air), and direct access to the laundry room via its walk-in closet—because “drop clothes, enter closet, done” is a winning concept.
The guest bedroom on the main level also has easy access to its own bath, making it perfect for long-term guests, older kids, or in-law staying. 5

Garage & Mudroom Flow
The 4-car garage (~1,164 sq ft) gives you serious space—cars, gear, hobbies, storage, whatever your future brings.
From the garage you pass through a mudroom or foyer and land in the open-plan zone—ideal for avoiding “bag entering the living room” scenarios. Good thinking. 6

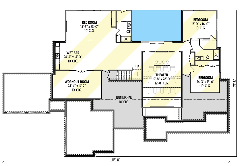
Optional Lower Level: Growth Without Compromise
This house anticipates the future. The design includes an optional lower level (a walk-out if your lot allows) that can add two extra bedrooms plus a home theater, bar, rec room, gym—you name it. So you build now, live fully now, and expand later when it suits your lifestyle. 7

Style & Adaptability
This is classically “New American” in vibe: familiar forms, modern amenities, and flexibility to adapt as family, work, and play change. Whether you’re hosting a holiday crowd, setting up a home office, or carving out space for workout + hobby zones, it’s ready. 8

Key Specs
- Heated Living Area: ~4,127 sq ft (main level) 9
- Bedrooms: 4 (with optional 2 more down) 10
- Bathrooms: 4 full + ½ (main level) 11
- Garage: 4-car, approx. ~1,164 sq ft 12
- Stories: Single main level + optional finished lower level
- Porch: Vaulted front porch (~368 sq ft) sets tone. 13
Lifestyle Benefits
- Large enough to feel upscale, but one-level living keeps it approachable.
- Flexible expansion: you’re not boxed in by today’s needs.
- Smart layout zones living, working, guest space cleanly.
- Garage built for serious storage or future vehicles/hobby gear.
Estimated U.S. Build Cost
For a home of this scale and finish quality, a rough U.S. build cost range would be around $225–$325 per sq ft, given size, amenities, and luxury touches.
That puts the estimated cost at roughly **$930K–$1.34M USD**, depending on your region, site conditions, finish level, and whether you build the lower level in the initial phase or later. Land, permitting, and site work are not included.
Why This Plan Stands Out
It feels confident without being overbearing. Big enough for the future, yet friendly and functional for the now.
You get four bedrooms and serious garage space. You get the option to grow. And you get a layout that flows beautifully. In short: it’s built for life—today, tomorrow, and beyond.




















