Imagine coming home to a sleek yet rugged mountain-craftsman sanctuary of about 3,402 sq ft.
This plan features a master suite with direct access to the laundry room (yes, truly), two additional bedrooms, a vaulted great room, and a lower level ready for future expansion. Designed for how life actually happens—with style.

Exterior & First Impressions
Board-and-batten siding meets stone veneer and timber-beam accents under a steep roof pitch—blending modern farmhouse chic with mountain lodge warmth. The covered front porch invites you to stay a while. 2

Open and Connected Living Spaces
Vaulted ceilings and exposed wood beams elevate the great room, which flows into the dining area and kitchen.
Large windows perched high bring in light and view. The kitchen’s big island anchors the space—ideal for everyday cooking, entertaining, or simply gathering.

Master Suite That Works Smarter
The master suite sits on one side of the home for privacy. It includes an ensuite bathroom, a generous walk-in closet and—here’s the smart bit—direct access to the laundry room. No more hauling clothes across the house. 4

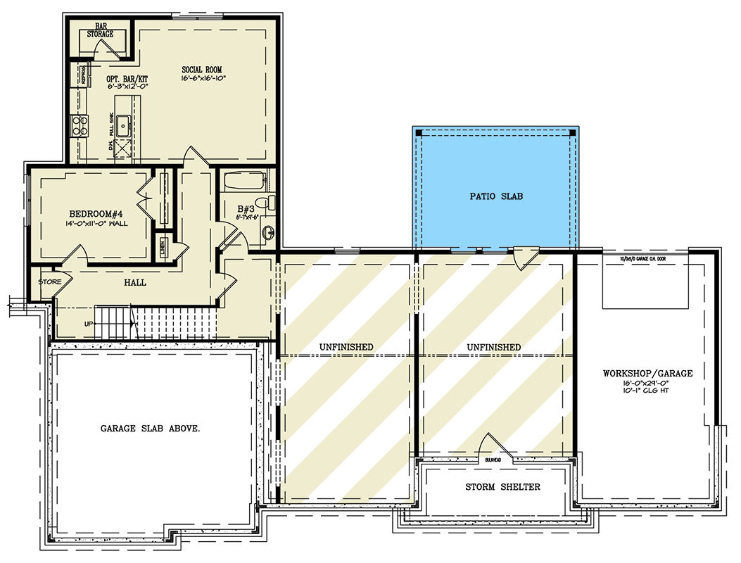
Bedrooms & Expansion-Ready Lower Level
Opposite the master are the secondary bedrooms, designed with efficiency and comfort in mind. Meanwhile the lower level is unfinished (or partially finished) and offers a fantastic canvas for a media room, extra bedrooms, gym or whatever your lifestyle demands. 5

Key Specs at a Glance
- Heated Living Area: ~3,402 sq ft
- Bedrooms: 3 (plus lower-level potential)
- Bathrooms: 3.5 bath typical (including master ensuite & shared bath) 6
- Stories: Main level plus optional lower level
- Special Features: Master → laundry access, vaulted great room, future expansion ready
Lower level

Why This Plan Works
This isn’t just about looks. The layout thoughtfully places high-traffic utility spaces (like the laundry) near private zones (like the master) without sacrificing the great room’s volume and shine. And the optional lower level gives you room to grow—without committing now. It’s the best of today and tomorrow in one package.

Estimated U.S. Build Cost (USD)
Given the size, style and finish expectations of a mountain-craftsman design, you’d expect build costs around $200–$285 per sq ft (varies by region, materials, labor). That gives a ballpark estimate of **$680K–$970K USD**, land and site work not included.





















