This elegant single-level home delivers roughly 4,127 sq ft of comfortable living space (with an optional walk-out lower level for major expansion).
It features 4 bedrooms, 4 full baths + 1 half bath, a spacious 4-car garage (~1,164 sq ft), and is built to optimize rear-slope lots and views.

Striking Curb Appeal & Front Entry
A broad, vaulted front porch (~368 sq ft) welcomes guests under timber accents and a dramatic roofline. Inside the foyer continues the vaulted treatment, setting a tone of open grandeur. 3

Live Big: Open Great Room & Kitchen
The heart of the home is a great room with a coffered ceiling and fireplace. It flows into the kitchen and dining area, with a “collapsible rear wall” opening to the back porch for seamless indoor-outdoor living.
The kitchen offers a large island, double sink facing the yard, and a walk-in pantry that invites serious cooking (or serious snacking). 4

Bedrooms & Private Spaces
The master suite is tucked to one side, offering porch access and direct access to laundry from the walk-in closet — yes, that means you could drop clothes from closet to laundry without hauling them across the house. Guest/secondary bedrooms sit across the floor plan for separation and quiet. 5

Garage + Practical Spaces
A large 4-car garage (~1,164 sq ft) accommodates vehicles, toys, or storage with ease. The mudroom, laundry, and walk-in pantry connect strategically so daily life feels efficient. 6

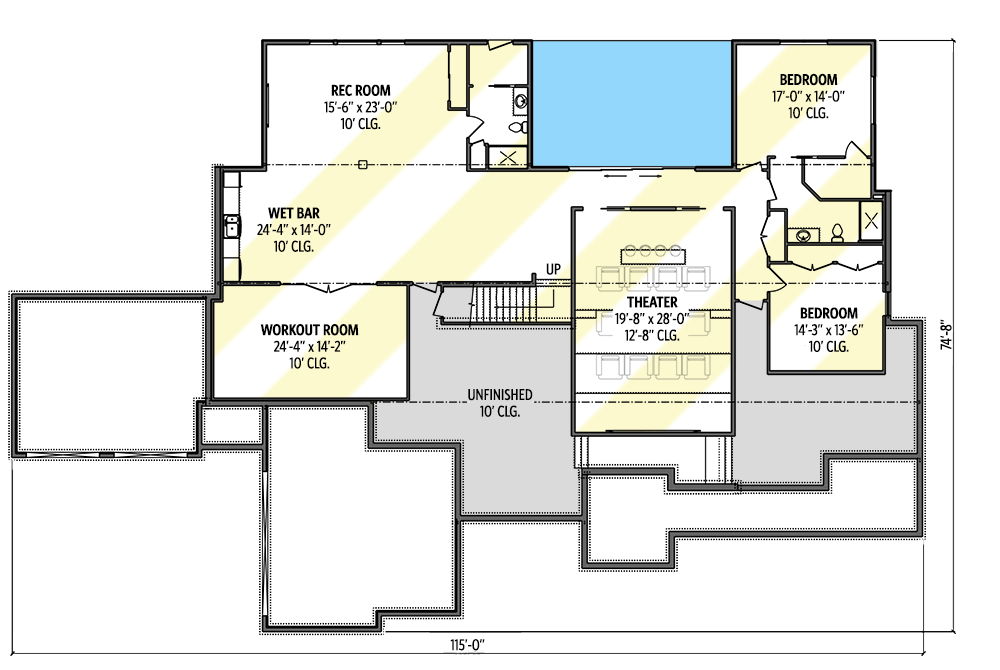
Bonus Level & Growth Potential
The plan includes an optional finished lower level (walk-out style) that adds roughly ~2,969 sq ft of livable space: think home theater, extra bedrooms, rec room, wet bar, guest suite—whatever you’re imagining. It’s ready when you are. 7

Quick Specs
- Heated Living Area (Main Level): ~4,127 sq ft
- Bedrooms: 4 (on main) + optional below
- Bathrooms: 4 full + 1 half (main) + optional below
- Garage: 4-car, ~1,164 sq ft
- Front Porch: ~368 sq ft, vaulted
- Lot Type: Rear-sloping / walk-out ready
- Width × Depth: 115′ × 74′ 8″ approx. 8
Lifestyle Highlights
- Outstanding indoor-outdoor connection with collapsible rear wall and large porch.
- Master suite designed for comfort and convenience (laundry access, porch exit).
- High-end entertaining potential: open plan, bonus rooms, theatre below.
- Garage and support spaces scale for hobbies, vehicles, storage and more.
- Ready for future growth: optional lower level means you don’t overbuild now—and you can expand later.
Estimated U.S. Build Cost (USD)
Given the size, quality, and optional expansion, expect build cost in a range of about $220-$330 per sq ft (varies widely by region, finishes, site conditions). That gives a rough estimate of **$905K-$1.36M USD** for main level; finishing the lower level could add significantly depending on scope and finishes.
Why This Plan Works
This plan blends modern luxury with smart design, all wrapped in a comfortable, family-friendly footprint. You get the scale and amenities of a large home, but with thoughtful flow and adaptability. Whether you’re entertaining big, living everyday, or planning for future growth—it has you covered.





















